EasyManua.ls Logo

ABB Tmax XT - Page 20

ABB Tmax XT
26 pages
Print Icon
To Next Page IconTo Next Page
To Next Page IconTo Next Page
To Previous Page IconTo Previous Page
To Previous Page IconTo Previous Page
Loading...
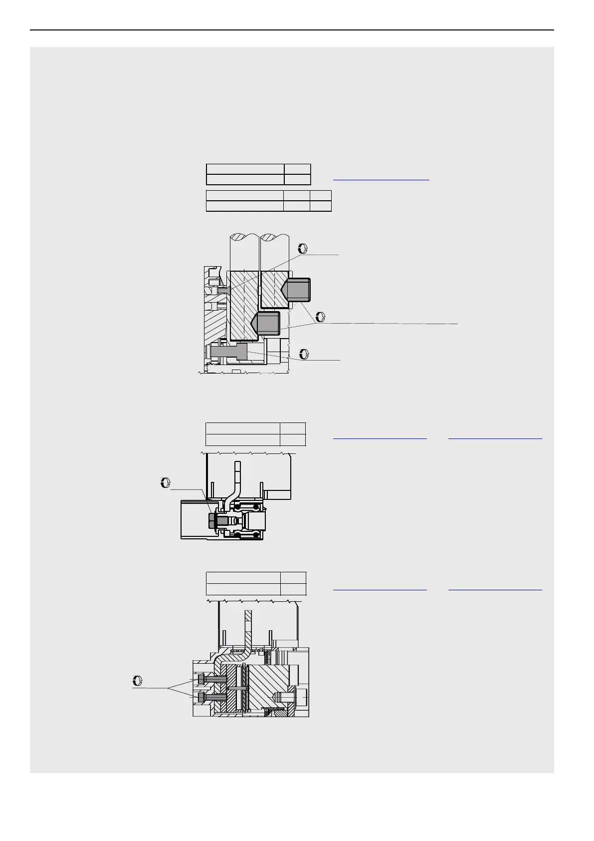
36 Nm
319 lb-in
500...600kcmil - 50 Nm/440 lb-in
1,2 Nm
10.6 lb-in
F/P/W - FC CuAl
2x500kcmil...750kcmil
1SDA115952R1 3pcs Vaux
1SDA115953R1 4pcs Vaux
1SDA115948R1 3pcs
1SDA115949R1 4pcs
700...750kcmil - 60 Nm/530 lb-in
SACE Tmax XT| ABB
40
XT5 3p-4p
Terminali
Terminals
Anschlusse
Prises
Terminales
端子类型
Codici
Codes
Codes
Codes
Códigos
物料编号
Istruzioni d’installazione
Installation instructions
Installationsanleitung
Instructions pour l'installation
Instrucciones de instalación
安装说明
Dimensioni di ingombro
Overall dimensions
Abmessungen
Dimensions d'encombrement
Dimensiones generales
全部尺寸
P-W 400 - EF
P-W 630 - EF
44 lb in
5 Nm
44 lb in
5 Nm
4 Nm
1SDH002011A1811
2TFH000019A1001 2TFH001004A1101
2TFH000019A1001 2TFH001008A1101

Related product manuals