EasyManua.ls Logo

Absolute ABS-1500 - Page 41

Absolute ABS-1500
74 pages
Print Icon
To Next Page IconTo Next Page
To Next Page IconTo Next Page
To Previous Page IconTo Previous Page
To Previous Page IconTo Previous Page
Loading...
Absolute Boilers ABS 1500-2000-2500-3000-4000
41
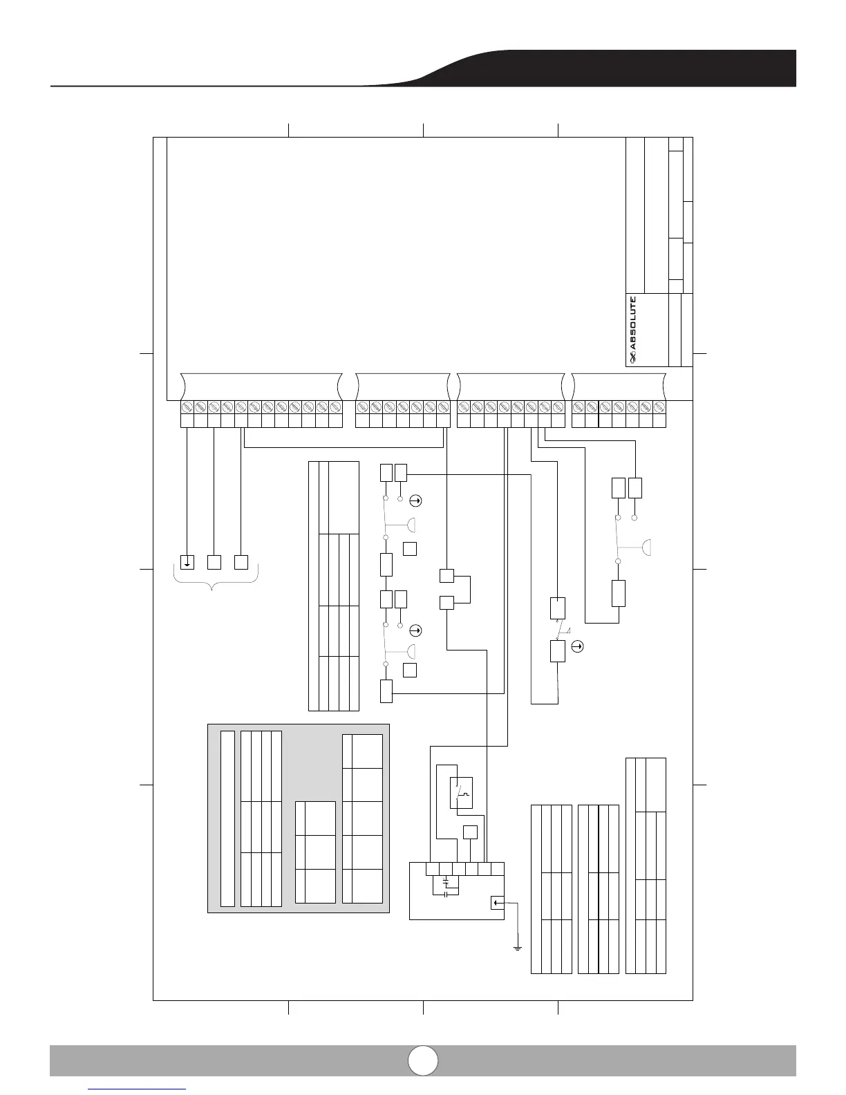
Absolute ABS Series (All Models)
Safety & Limit Wiring Detail
SIZE Drawn by: DWG NO REV
11x17
Craig H. 4-ABS-SOL-001 0
SCALE
NTS 4/6/2016
SHEET
8 OF 15
COM
NO
NC
IAS
COM
NO
NCCOM
NO
NC
HGP LGP
J6
8
7
6
5
4
3
2
1
Honeywell Sola
R7910A
J7
7
6
5
4
3
2
1
D
C
B
A
4 3 2 1
D
C
B
A
4 3 2 1
P 1 2 3 4 5
NL
LWCO
12
J4
11
10
9
8
7
6
5
4
3
2
1
N
J5
7
6
5
4
3
2
1
C6097A 1012
DG50NT-3G
LGP (Low gas pressure switch) = All ABS Models
Honeywell
Dungs
Kromschroder
Mfr Model Working Range
GML-A2-4-4
1-20 inch w.c.
1-20 inch w.c.
3 – 21 inch w.c.
Set Point
3.5 inch w.c.
± 0.25 inch w.c.
120/60/1
10A Max
N
L
LFM-1203S-1
751P-MT-120
Low Water Control = All ABS Models
TACO
McDonnell/Miller
Mfr Model
MR – CSD-1 compliant
MR – CSD-1 compliant
Features
DL1E1
(IAS) Interrupted Air Switch = All ABS Models
Dungs
Krom/Schroder
Mfr Model Working Range
AA-A1-0-2
0.08 – 0.40 inch w
0.16 to 1.20 inch w.c.
Set Point
0.20 ± 0.1" w.c.
C6097B 1028
DG50HT-3N
Honeywell
Dungs
Kromschroder
Mfr Model Working Range
GMH-A4-4-4
1- 20 inch w.c.
1 – 20 inch w.c.
3 - 21.0 inch w.c.
ABS 1500
6.0 ± 0.25
w.c.
ABS 2000
8.0 ± 0.25
w.c.
ABS 2500
8.0 ± 0.25
w.c.
ABS 3000
6.0 ± 0.25
w.c.
ABS 4000
6.0 ± 0.25
w.c.
ABS 750
3.0 ± 0.25
w.c.
ABS 900
5.0 ± 0.25
w.c.
ABS 1050
4.0 ± 0.25
w.c.
Set Point
HGP (High gas pressure-Vent safety switch)
M/R Hi Limit
LS1/LS3
L4006E1067
Safety Hi Limit (Manual Reset)
IMIT (541510)
Honeywelll
Mfr Model
MR – CSD-1 compliant
MR – CSD-1 compliant
Features
2 1
Jumper or other
safety interlock
Flow Sw.
NC
COM
N N
Innovative Industrial Inc.
122 Burton Street, Hamilton,
Ontario, Canada L8I 3R5

Table of Contents