EasyManua.ls Logo

Acer Extensa 2000 - Board Layout

Acer Extensa 2000
147 pages
Print Icon
To Next Page IconTo Next Page
To Next Page IconTo Next Page
To Previous Page IconTo Previous Page
To Previous Page IconTo Previous Page
Loading...
4 Chapter 1
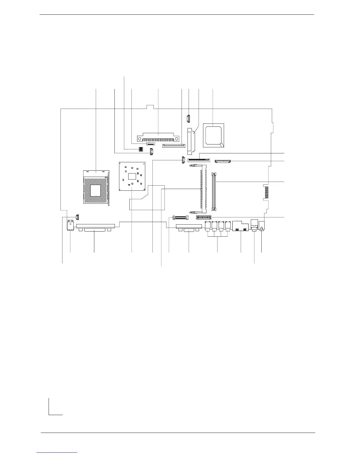
Board Layout
Top View
1 CPU Socket 14 Line-in Port
2 Fan Connector 15 Line-out Port
3 SW1 (Please see Chapter 5 for detailed settings) 16 RJ45+RJ11
4 Touchpad Cable Connector 17 Four USB Ports
5 HDD Connector 18 VGA Port
6 Keyboard Connector 19 LCD Coaxial Cable Connector
7 Speaker Cable Connector 20 Mini PCI Connector
8 Optical Drive Connector 21 RTC Battery Connector
9 South Bridge 22 North Bridge
10 FDD Connector 23 Parallel Port
11 Launch Cable Connector 24 DC-in Port
12 PCMCIA Slot 25 LCD Lid Switch
13 LCD Inverter Cable Connector
12
3
4
5
67 8 9
10
11
12
13
14
15
16
17
1819
20
2122
23
24
25

Table of Contents

Related product manuals