EasyManua.ls Logo

ACV Comfort E 160 - Page 11

ACV Comfort E 160
30 pages
Print Icon
To Next Page IconTo Next Page
To Next Page IconTo Next Page
To Previous Page IconTo Previous Page
To Previous Page IconTo Previous Page
Loading...
en
11
Comfort E : A1002860 - 661Y1600 • D
EN
FR
NL
ES
IT
DE
PL
RU
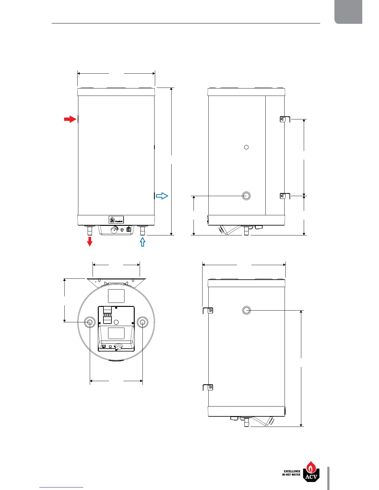
TECHNICAL CHARACTERISTICS
A
265265
B
C
530
563
298
360
325

Related product manuals