EasyManua.ls Logo

AGA Legacy 44 - Electrical Connection; Electrical Requirements and Supply; Connecting the Supplied Cord and Plug; Connecting if Supplied Cord is Not Suitable

AGA Legacy 44
60 pages
Print Icon
To Next Page IconTo Next Page
To Next Page IconTo Next Page
To Previous Page IconTo Previous Page
To Previous Page IconTo Previous Page
Loading...
42
Read all instructions before installing or using this appliance.
Installation Instructions
Save these instructions for future reference.
Electrical Connection
When installed the range must be
electrically grounded in accordance with
local codes or; in the absence of local
codes with the National Electrical Code
ANSI/NFPA 70, latest edition.
In Canada the range must be installed
in accordance with the current CSA
Standard C22.1 - Canadian Electrical Code
Part 1.
Electrical Power Supply
Requirements
Electrical Requirements
CAUTION: FOR PERSONAL SAFETY, DO
NOT USE AN EXTENSION CORD WITH
THIS APPLIANCE. REMOVE HOUSE FUSE
OR OPEN CIRCUIT BREAKER BEFORE
BEGINNING INSTALLATION.
This appliance must be supplied with the proper
voltage and frequency, and connected to an
individual, properly grounded branch circuit,
protected by a circuit breaker or time-delay fuse,
as noted on the rating plate.
Wiring must conform to National Electric Codes.
If the electric service provided does not meet the
above specifi cations, have a licensed electrician
install an approved outlet.
Because range terminals are not accessible
after range is in position, fl exible service conduit
or cord must be used.
Provide Proper Electrical Supply
This range must be supplied with 240 volt, 60
Hz., and connected to an individual, properly
grounded branch circuit protected by a circuit
breaker or time-delay fuse (40 amp). If the
electrical service provided does not meet the
above specifi cations, it is recommended that a
licensed electrician install an approved outlet.
From January 1, 1996, the National Electric
Code requires that new construction (not
existing) utilize a 4-conductor connection to an
electric range.
Connecting using the supplied
cord and plug
Your range is shipped with a 4-prong plug to be
used in a NEMA 14-50R receptacle.
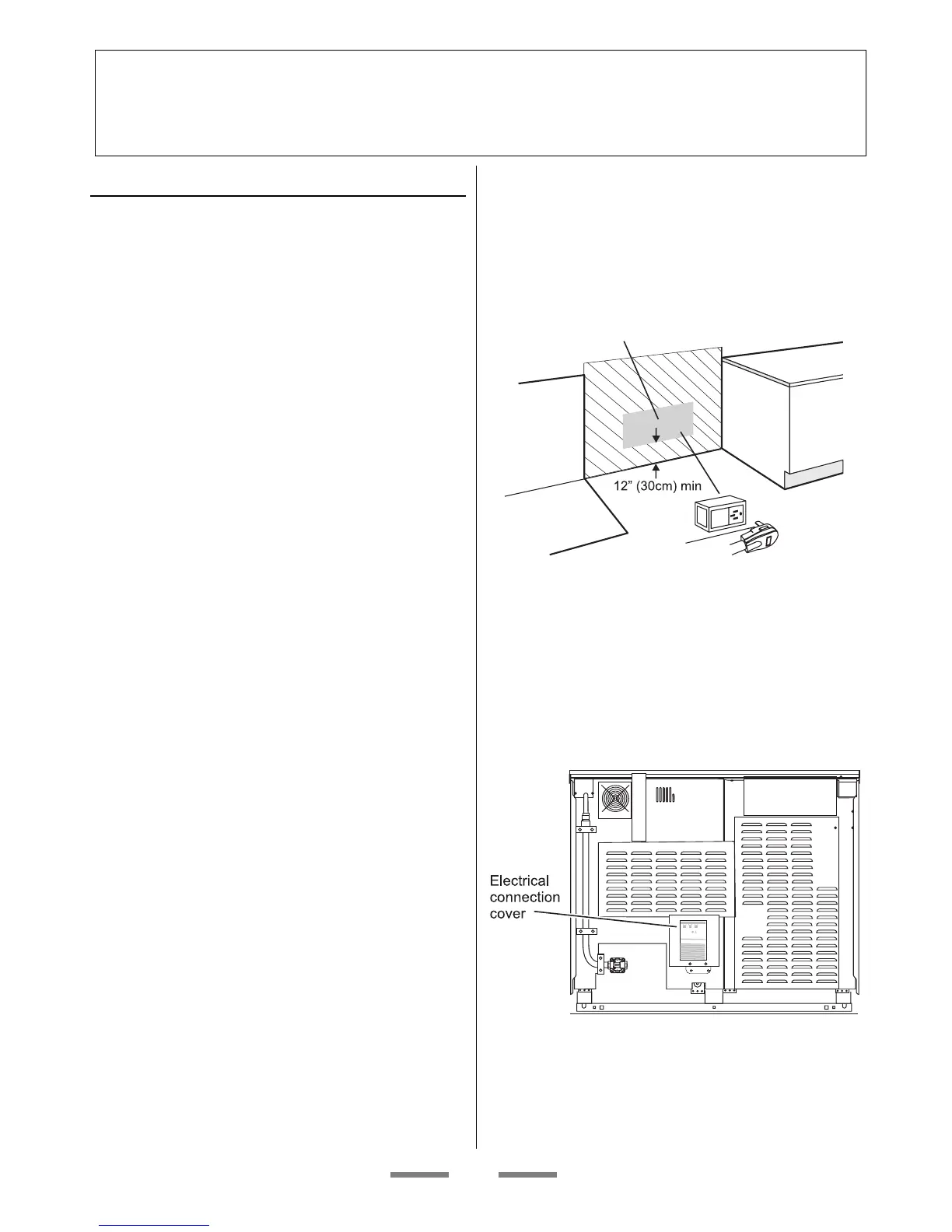
Recommended Electrical Outlet Locations
Locate the electric supply as illustrated.
Recommended acceptable electrical outlet area. Orient the electrical
receptacle so the length is parallel to the fl oor.
When connecting using a NEMA 14-50R
receptacle, if possible position it so that it can
be accessed through the opening at the rear of
the drawer cavity. The range can then be easily
disconnected for servicing etc.
Plug the range power cord into a properly
grounded wall receptacle.
Connecting if the supplied cord
and plug is not suitable.
To remove the electrical connection cover fi rst
remove the screws on the top and bottom edges.
The cover has two side and one bottom location
tags.

Other manuals for AGA Legacy 44

Related product manuals