EasyManua.ls Logo

AGFA MSC 100 - Page 286

AGFA MSC 100
378 pages
Print Icon
To Next Page IconTo Next Page
To Next Page IconTo Next Page
To Previous Page IconTo Previous Page
To Previous Page IconTo Previous Page
Loading...
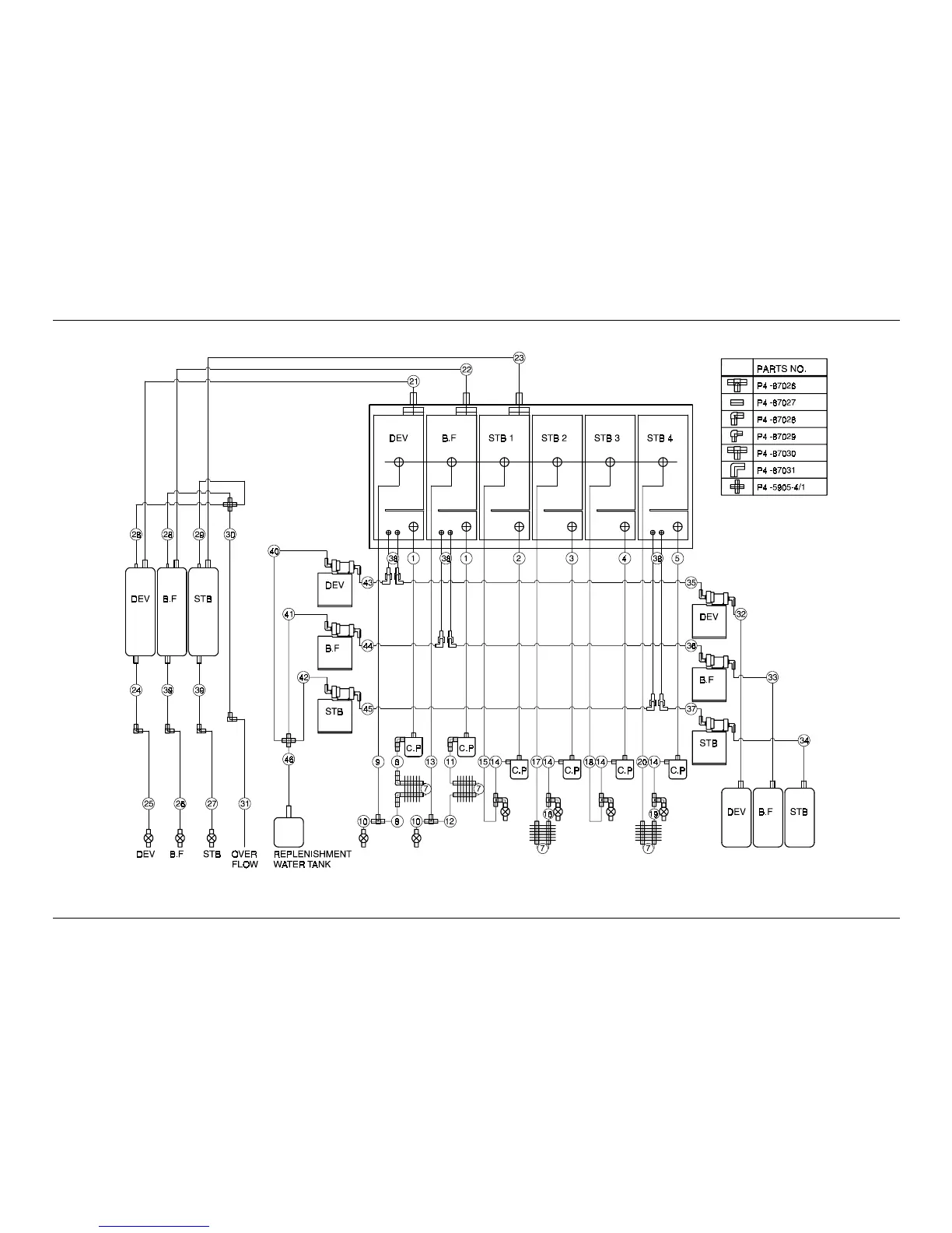
Papierprozessor / Paper Processor / Développeuse papier
5.88
28.07.99 /PN 8042
AGFA MSC 100
Verschlauchungsplan / Tube Arrangement / Plan de tuyauterie
8506rf57.cdr

Table of Contents

Related product manuals