EasyManua.ls Logo

AirTouch 2 - Page 39

AirTouch 2
68 pages
Print Icon
To Next Page IconTo Next Page
To Next Page IconTo Next Page
To Previous Page IconTo Previous Page
To Previous Page IconTo Previous Page
Loading...
39
(
657238
)
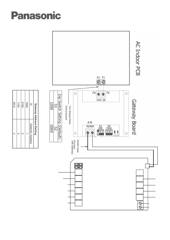
Wiring Diagram
Wiring Diagrams contd.
1 3
2 4
E/M T Z1 Z2 Z3 Z4
Z8 Z7 Z6 Z5
RS485
Gateway
N L
24 VAC
B A
E/M: To Extension Module
T: To Touchscreen (Console)
Z1-Z8: To Zone Ports
1-4: Supply Air Sensors
RS 485: To AC Gateways
24 VAC: To Power Supply
To Damper Motors
To Damper Motors
AirTouch 2+
To Transformer
To Extension Module
To Touch Screen
(Optional)