EasyManua.ls Logo

Allen-Bradley 1756-IA8D - 1756-Ob16 E

Allen-Bradley 1756-IA8D
258 pages
To Next Page IconTo Next Page
To Next Page IconTo Next Page
To Previous Page IconTo Previous Page
To Previous Page IconTo Previous Page
Loading...
162 Rockwell Automation Publication 1756-UM058G-EN-P - November 2012
Chapter 8 Wiring Diagrams
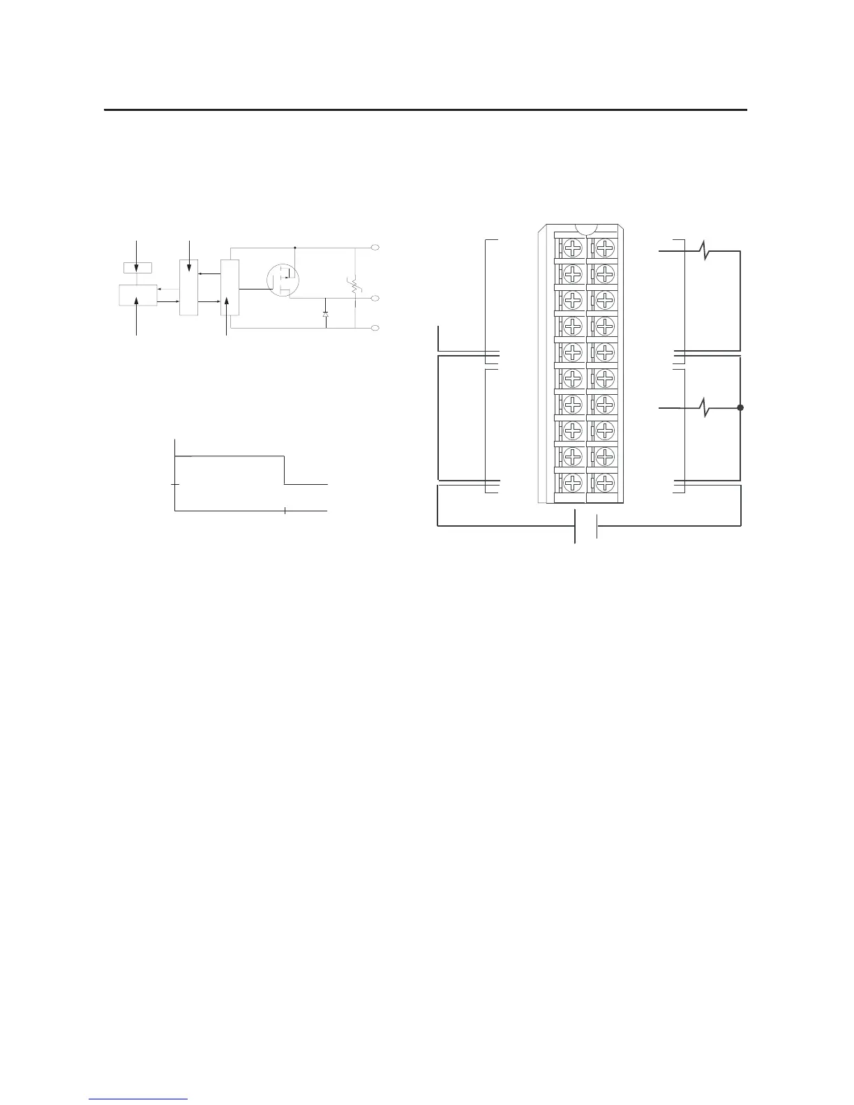
1756-OB16E
ControlLogix DC (10...31.2V) electronically-fused output module
12
34
5
6
7
8
910
11
12
1314
1516
1718
19
20
+
Daisy Chain to
Other RTBs
Group 0Group 0
Group 1Group 1
DC COM
OUT-1
OUT-3
OUT-5
OUT-7
OUT-9
OUT-11
OUT-13
OUT-15
DC-0(+)
DC-1(+)
OUT-0
OUT-2
OUT-4
OUT-6
OUT-8
OUT-10
OUT-12
OUT-14
RTN OUT-0
RTN OUT-1
1756-OB16E
ControlLogix
Backplane
Interface
Electronic Fuse
Circuitry
Continuous @ 60 °C (140 °F)
Display Optoisolation
RTN
OUT-0
OUT-0
DC-0(+)
Surge Current Chart
Simplified Schematic
Surge
Current
Time
0 10 ms
1 A
2 A

Table of Contents

Related product manuals