EasyManua.ls Logo

Allen-Bradley 2098-DSD-020X-DN - Power Interconnect Diagrams

Allen-Bradley 2098-DSD-020X-DN
194 pages
Print Icon
To Next Page IconTo Next Page
To Next Page IconTo Next Page
To Previous Page IconTo Previous Page
To Previous Page IconTo Previous Page
Loading...
Publication 2098-IN003E-EN-P — April 2004
Interconnect Diagrams B-3
Power Interconnect
Diagrams
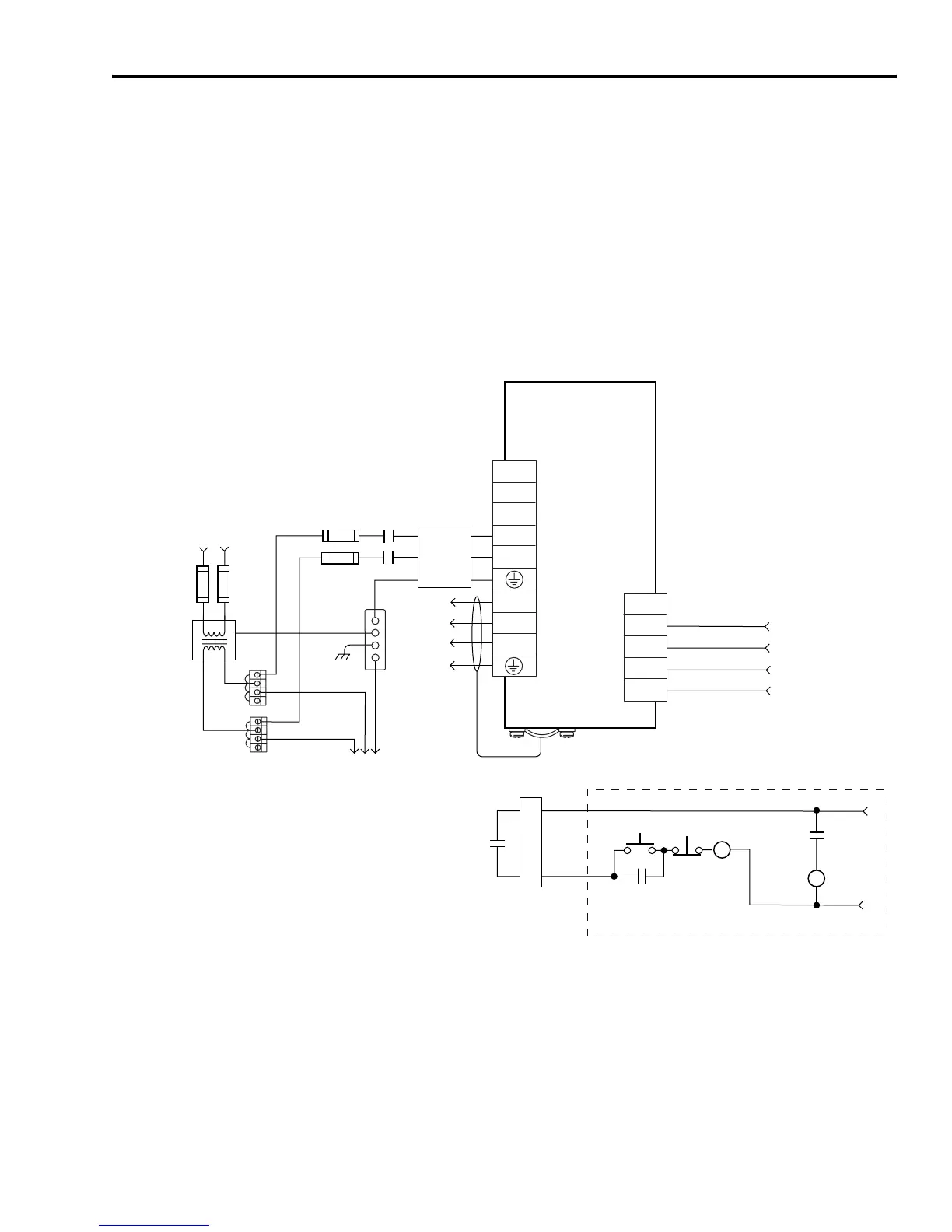
The Ultra3000 (2098-DSD-005x-xx, -010x-xx, and -020x-xx) power
wiring with 24V dc control string (non-SERCOS drives only) is shown
in the figure below. To avoid a separate 5V dc auxiliary logic power
supply, the 24V to 5V converter breakout board (2090-U3CBB-DMxx)
is used to wire the control interface (CN1) connector. For the control
string diagram with 120V ac input refer to Figure B.16.
For SERCOS drives, input line contactor is part of the PLC program
and output control.
Figure B.1
Typical Power Wiring of Ultra3000 System
(2098-DSD-005x-xx, -010x-xx, and -020x-xx)
Note: Refer to Figure 2.26 in the chapter Ultra3000 Connector Data
for more information on the relay output.
TB1
DC+
DC-
L1
L2/N
U
V
W
L2/N
L1
CN1
43
44
3
2
43
44
CN1
Ultra3000
Digital Servo Drives
2098-DSD-005x-xx,
-010x-xx, and -020x-xx
Note 13
DC Bus Connections
for Active Shunt Module
(refer to Figure B.5)
AC Input Power
Connections
Motor Power
Connections
M1*
Note 8
Single-Phase
AC Line Filter
Note 7
Input Fusing*
Note 4, 5
Single-Phase AC Line
50/60 Hz
Fused Disconnect
or Circuit Breaker*
Note 1
Isolation
Transformer*
Note 2
Chassis
Bonded Cabinet
Ground Bus*
Terminal
Blocks*
Note 3
To additional
Ultra3000 drive
Three-Phase
Motor Power
Connections
Note 12
Cable Shield
Clamp
Note 9
* INDICATES USER-SUPPLIED COMPONENT
STOP*
START*
CR1*
CR1*
CR1*
M1*
Refer to Attention statement (Notes 10, 11)
24V dc
N.O. Relay Output+
N.O. Relay Output-
Aux Logic Power In +5V
Aux +5V Common
Note 21
Note 20
From CN1 Breakout
Board with 24V to 5V
Aux Power Converter
(2090-U3CBB-DMxx)
Single-Phase Input
100-240V ac RMS

Table of Contents

Related product manuals