EasyManua.ls Logo

Allen-Bradley 22C-D072A103 - Page 143

Allen-Bradley 22C-D072A103
196 pages
Print Icon
To Next Page IconTo Next Page
To Next Page IconTo Next Page
To Previous Page IconTo Previous Page
To Previous Page IconTo Previous Page
Loading...
Rockwell Automation Publication 22C-UM001J-EN-E - January 2017 141
Accessories and Dimensions Appendix B
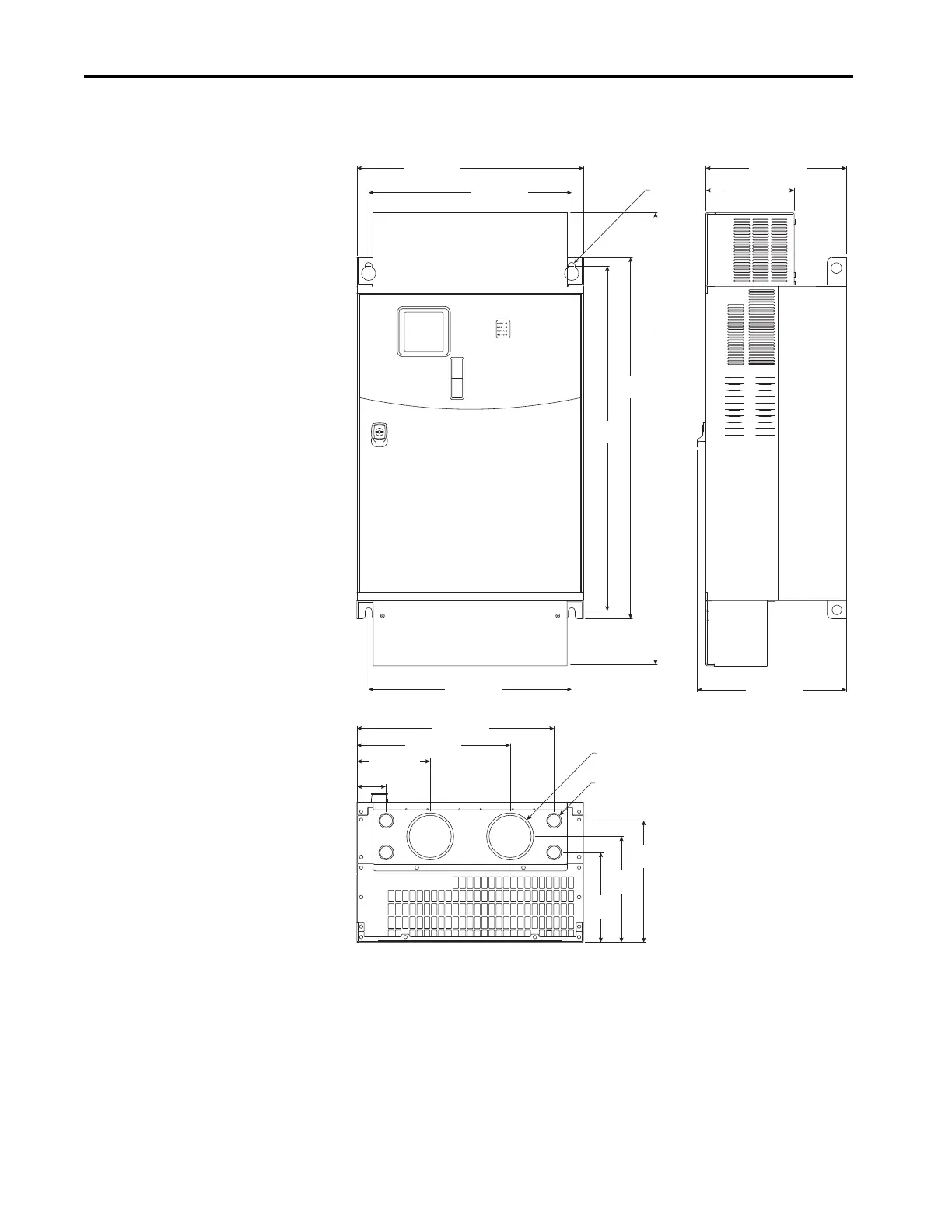
Figure 21 - PowerFlex 400 Frame F Drive
Dimensions are in millimeters and (inches)
137.5 (5.41)
287.5 (11.32)
370.0 (14.57)
55.0 (2.17)
169.0
(6.65)
228.5
(9.00)
199.0
(7.83)
74.8
(2.94)
22.0
(0.87)
381.0 (15.00)
381.0 (15.00)
425.0 (16.73)
13.0
(0.51)
850.0
(33.46)
678.0
(26.69)
647.5
(25.49)
264.0 (10.39)
165.8 (6.53)
280.0 (11.02)

Table of Contents

Related product manuals