EasyManua.ls Logo

Alliance Laundry Systems ST030E - Gas Connection Locations

Alliance Laundry Systems ST030E
136 pages
Print Icon
To Next Page IconTo Next Page
To Next Page IconTo Next Page
To Previous Page IconTo Previous Page
To Previous Page IconTo Previous Page
Loading...
Specifications and Dimensions
Part No. 70458301ENR7
©
Copyright, Alliance Laundry Systems LLC - DO NOT COPY or TRANSMIT 29
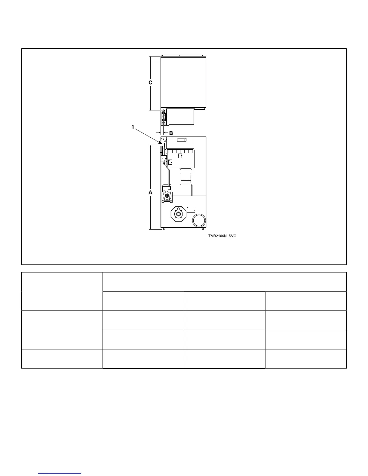
Gas Connection Locations – 025, 030, 035 and 055 Series
TMB2106N
1
1/2 in. NPT
Gas Connection – CE and Australian Units
Models A B C
25 Series 59 in. (1,500 mm) 1.5 in. (38.1 mm) 29 in. (737 mm)
30 Series 59 in. (1,500 mm) 1.5 in. (38.1 mm) 35 in. (889 mm)
35 Series 59 in. (1,500 mm) 2.5 in. (64 mm) 35 in. (889 mm)

Table of Contents

Other manuals for Alliance Laundry Systems ST030E

Related product manuals