EasyManua.ls Logo

Alliance Laundry Systems ST030E - Page 56

Alliance Laundry Systems ST030E
136 pages
Print Icon
To Next Page IconTo Next Page
To Next Page IconTo Next Page
To Previous Page IconTo Previous Page
To Previous Page IconTo Previous Page
Loading...
Exhaust Requirements
56
©
Copyright, Alliance Laundry Systems LLC - DO NOT COPY or TRANSMIT Part No. 70458301ENR7
so the interior surfaces are smooth, so the joints do not permit
the accumulation of lint. DO NOT use plastic, thin foil or Type
B flexible ducts - rigid metal ducts are recommended. Use
exhaust ducts made of sheet metal or other noncombustible
material. DO NOT use sheet metal screws or fasteners on
exhaust pipe joints which extend into the duct and catch
lint. Use of duct tape or pop-rivets on all seams and joints is
recommended, if allowed by local codes.
Verify that old ducts are thoroughly cleaned out before installing
new tumble dryer(s).
WARNING
Improperly sized or assembled ductwork causes
excess back pressure which results in slow drying,
lint collecting in the duct, lint blowing back into the
room, and increased fire hazard.
W355
NOTE: Exhaust ducts must be constructed of
sheet metal or other noncombustible material. Such
ducts must be equivalent in strength and corrosion
resistance to ducts made of galvanized sheet steel not
less than 0.0195 inches (0.495 mm) thick.
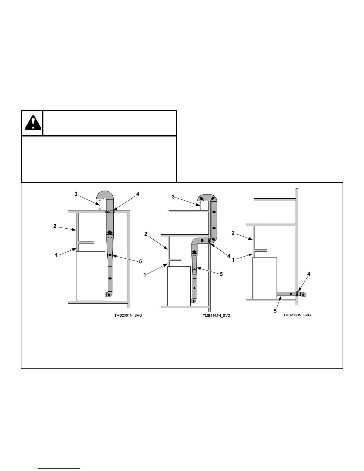
Where the exhaust duct pierces a combustible wall or ceiling,
the opening must be sized per local codes. The space around
the duct may be sealed with noncombustible material. Refer to
Figure 18 .
IMPORTANT: For best performance provide an
individual exhaust duct for each tumble dryer. Do
not install a hot water heater in a room containing
tumble dryers. It is better to have the water heater in a
separate room with a separate air inlet.
1
Removable strip of panel in framing wall to permit removal of tumble dryer from framing wall
2
Partition or bulkhead
3
Minimum distance between exhaust opening and roof, ground or other obstruction: 36 in. (914 mm)
4
2 in. (51 mm) minimum clearance on both sides of duct
5
Exhaust airflow – maximum length of rigid duct 14 ft. (4.3 m) or 7.87 ft. (2.4 m) of flexible metal duct
Figure 18
NOTE: Do not install wire mesh or screen in exhaust
duct opening to avoid lint build-up or impacting
proper discharge of air from tumble dryers.
NOTE: Where exhaust duct pierces a combustible wall
or ceiling, the opening must be sized per local codes.
NOTE: Inside of duct must be smooth. Do not use
sheet metal screws to join sections.
Consult your local building code for regulations which may also
apply.

Table of Contents

Other manuals for Alliance Laundry Systems ST030E

Related product manuals