EasyManua.ls Logo

Alliance Laundry Systems ST030N - Exhaust Outlet Locations - T30 and T45 Series

Alliance Laundry Systems ST030N
136 pages
Print Icon
To Next Page IconTo Next Page
To Next Page IconTo Next Page
To Previous Page IconTo Previous Page
To Previous Page IconTo Previous Page
Loading...
Specifications and Dimensions
28
©
Copyright, Alliance Laundry Systems LLC - DO NOT COPY or TRANSMIT Part No. 70458301ENR7
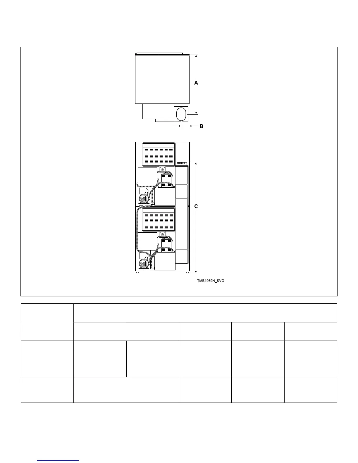
Exhaust Outlet Locations – T30 and T45 Series
TMB1969N
Rear Exhaust
Models Diameter A B C
T30 Series Classic Line
Elliptical Fits 8 in.
(203 mm)
Eco Line
Round Fits 6 in.
(152 mm)
36.54 in.
(928 mm)
4.25 in. (108 mm) 62.42 in.
(1,585 mm)
T45 Series Elliptical Fits 10 in. (254 mm) 40.88 in.
(1,038 mm)
4.75 in. (121 mm) 66.00 in.
(1,676 mm)

Table of Contents