EasyManua.ls Logo

Alpha ESS T100 - Inverter Side-Wiring

Alpha ESS T100
44 pages
Print Icon
To Next Page IconTo Next Page
To Next Page IconTo Next Page
To Previous Page IconTo Previous Page
To Previous Page IconTo Previous Page
Loading...
______________________________________________________________________
Alpha ESS Co., Ltd.
Page 25 of 45
Your Smart Energy
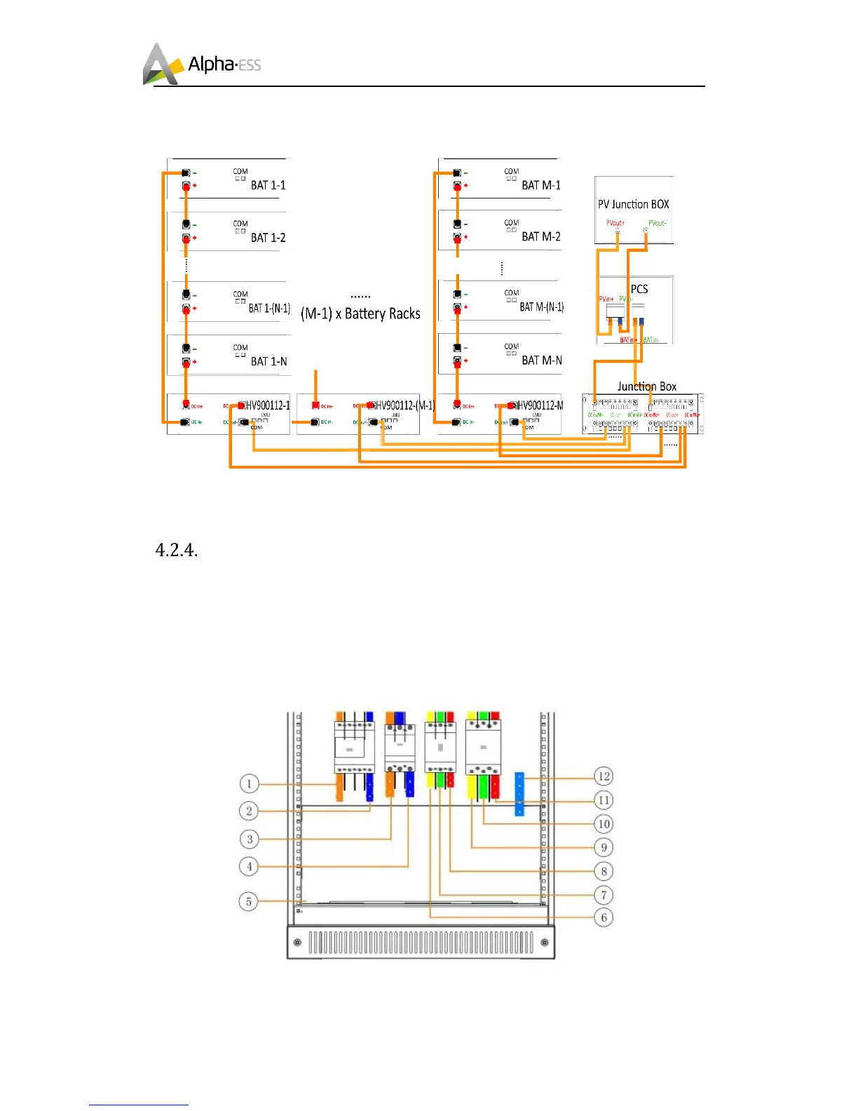
d. Connect the power cables as the below picture shows:
Figure 4-2 Battery side-power cables connection
Inverter Side-Wiring
The connection positions are in the bottom down position of the inverter cabinet. The
cables shall be passed through the hole on the base of cabinet into the cable trench. Open
the front door and remove the inner door, you can see the wiring copper bar. In view of the
requirements of connecting cables, single or multiple cables with suitable diameter shall
be selected.
We suggest to use 35mm
2
cables to connect both AC and PV port.
Figure 4-3 Inverter wiring diagram

Related product manuals