EasyManua.ls Logo

Alpine ALP080B - Condensate Overflow Switch Orientation; System Freeze Protection

Alpine ALP080B
152 pages
Print Icon
To Next Page IconTo Next Page
To Next Page IconTo Next Page
To Previous Page IconTo Previous Page
To Previous Page IconTo Previous Page
Loading...
128 103448-07- 1/16
i. Fernox™ Restorer (universal cleaner, sludge
remover, scale remover, ux residue/debris
remover, corrosion inhibitor)
ii. Fernox™ Protector (Alphi 11, CH#, Copal)
(sludge remover, corrosion inhibitor)
Follow manufacturer application procedure
for proper heating system/boiler cleaning and
preventive treatment.
Above referenced products are available from
Alent plc, Consumer Products Division, 4100
6
th
Avenue, Altoona, PA 16602, Tel: (972)
547-6002 and/or selected HVAC distributors.
Contact U.S. Boiler Company for specic
details.
iii. Sentinel
®
X400 System Restorer (For Older
Closed Loop Hydronic Heating Systems)
iv. Sentinel
®
X300 System Cleaner (For New
Heating Systems)
v. Sentinel
®
X100 Inhibitor (For Protecting
Closed Loop Hydronic Heating Systems
Against Lime scale And Corrosion)
Follow manufacturer application procedure
for proper heating system/boiler cleaning and
preventive treatment.
Above referenced products are available from
Douglas Products and Packaging, 1550 E. Old
210 Highway, Liberty, MO 64068, Tel:(877)
567-2560 (Toll Free) and/or selected HVAC
distributors.
2. System Freeze Protection:
a. The following heating system freeze protection
products are recommended for Alpine boilers:
i. Fernox™ Protector Alphi 11 (combined
antifreeze and inhibitor).
Follow manufacturer application procedure
to insure proper antifreeze concentration and
inhibitor level.
Above referenced product is available from
Alent plc, Consumer Products Division, 4100
6
th
Avenue, Altoona, PA 16602, Tel: (972)
547-6002 and/or selected HVAC distributors.
Contact U.S. Boiler Company for specic
details.
ii. Sentinel
®
X500 Inhibited Antifreeze
(combined antifreeze and inhibitor)
Follow manufacturer application procedure
to insure proper antifreeze concentration and
inhibitor level.
Above referenced products are available from
Douglas Products and Packaging, 1550 E. Old
210 Highway, Liberty, MO 64068, Tel:(877)
567-2560 (Toll Free) and/or selected HVAC
distributors.
b. Equivalent system freeze protection products
may be used in lieu of product referenced above.
In general, freeze protection for new or existing
systems must use specially formulated glycol,
which contains inhibitors, preventing the glycol
from attacking the metallic system components.
Insure that system uid contains proper glycol
concentration and inhibitor level. The system should
be tested at least once a year and as recommended by
the manufacturer of the glycol solution. Allowance
should be made for expansion of the glycol solution.
WARNING
Poison Hazard. Use only inhibited propylene
glycol solutions specically formulated for
hydronic systems. Do not use ethylene glycol,
which is toxic and can attack gaskets and seals
used in hydronic systems. Use of ethylene
glycol could result in property damage, personal
injury or death.
XI. Service and Maintenance (continued)
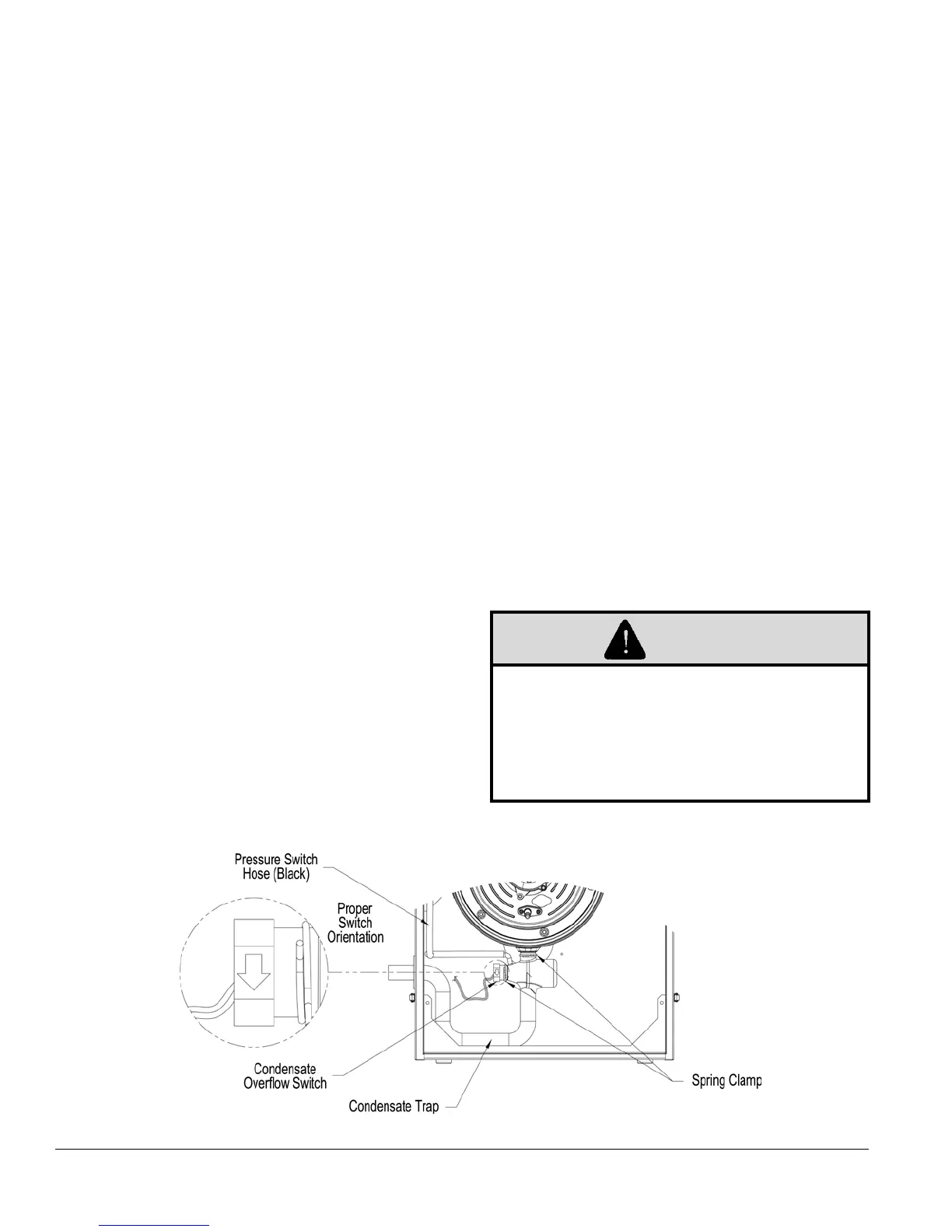
Figure 47: Condensate Overow Switch Orientation

Table of Contents

Related product manuals