EasyManua.ls Logo

Alpine ALP080B - Electrical Diagrams; Wiring Connections Diagram

Alpine ALP080B
152 pages
Print Icon
To Next Page IconTo Next Page
To Next Page IconTo Next Page
To Previous Page IconTo Previous Page
To Previous Page IconTo Previous Page
Loading...
76 103448-07- 1/16
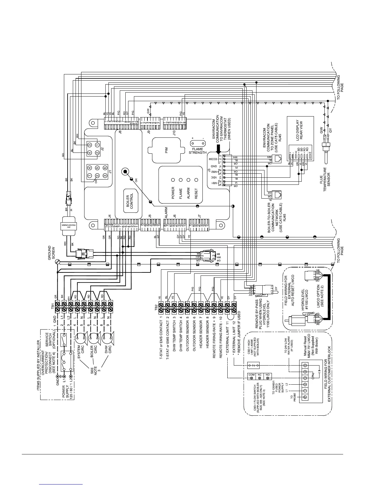
VIII. Electrical (continued)

Table of Contents

Related product manuals