EasyManua.ls Logo

Alpine ALP080B - Direct Vent - Vertical Two-Pipe Venting;Air Intake with Ipex Fgv

Alpine ALP080B
152 pages
Print Icon
To Next Page IconTo Next Page
To Next Page IconTo Next Page
To Previous Page IconTo Previous Page
To Previous Page IconTo Previous Page
Loading...
26 103448-07- 1/16
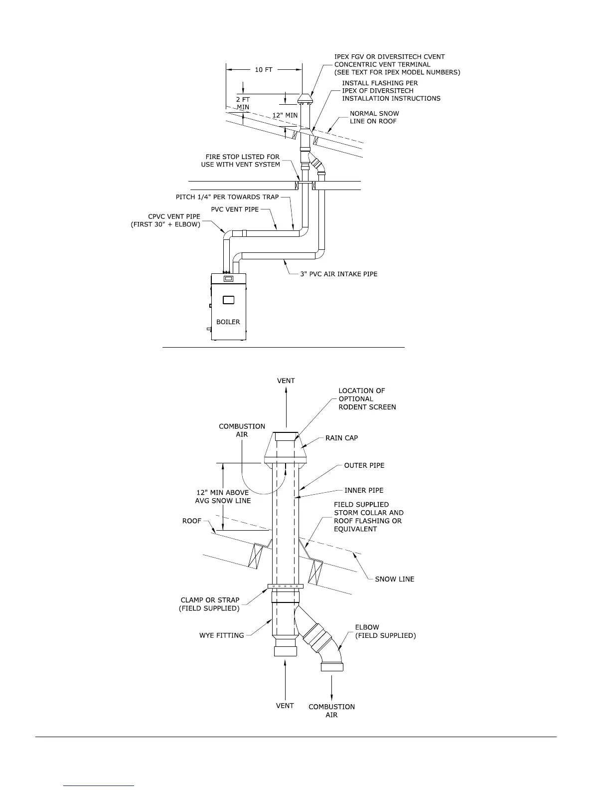
IV. Venting B. CPVC/PVC Venting (continued)
Figure 7B: Direct Vent - Vertical Two-Pipe Venting/Air Intake with IPEX FGV
or DiversiTech CVENT Concentric Terminal
Figure 7C: Installation of IPEX FGV or DiversiTech CVENT Concentric Terminal thru Roof

Table of Contents

Related product manuals