EasyManua.ls Logo

Alpine ALP080B - Isolation of Boiler from Oxygenated Water with a Plate Heat Exchanger; Multiple Boiler Installation Water Piping; Multiple Boiler Water Manifold Sizing; Special Situation Installation Requirements

Alpine ALP080B
152 pages
Print Icon
To Next Page IconTo Next Page
To Next Page IconTo Next Page
To Previous Page IconTo Previous Page
To Previous Page IconTo Previous Page
Loading...
62 103448-07- 1/16
VI. Water Piping and Trim D. Special Situation Installation Requirements (continued)
2. Piping with a Chiller - If the boiler is used in
conjunction with a chiller, pipe the boiler and chiller
in parallel. Use isolation valves to prevent chilled
water from entering the boiler.
3. Boiler Piping with Air Handlers - Where the
boiler is connected to air handlers through which
refrigerated air passes, use ow control valves in the
boiler piping or other automatic means to prevent
gravity circulation during the cooling cycle.
E. Multiple Boiler Installation Water Piping
(See Table 15 and Figures 24A, 24B, 25A and 25B)
Table 15: Multiple Boiler Water Manifold Sizing
Boiler Model
Number of Boilers
2 3 4 5 6 7 8
Recommended Minimum Common Water
Manifold Size (NPT)
ALP080B 1¼” 1½” 1½” 2” 2” 2” 2½”
ALP105B 1¼” 1½” 2” 2” 2½” 2½” 2½”
ALP150B 1½” 2” 2½” 3” 3” 3” 3”
ALP210B 2” 2½” 2½” 3” 3½” 3½” 3½”
ALP285B 2” 3” 3” 3½” 4” 4” 5”
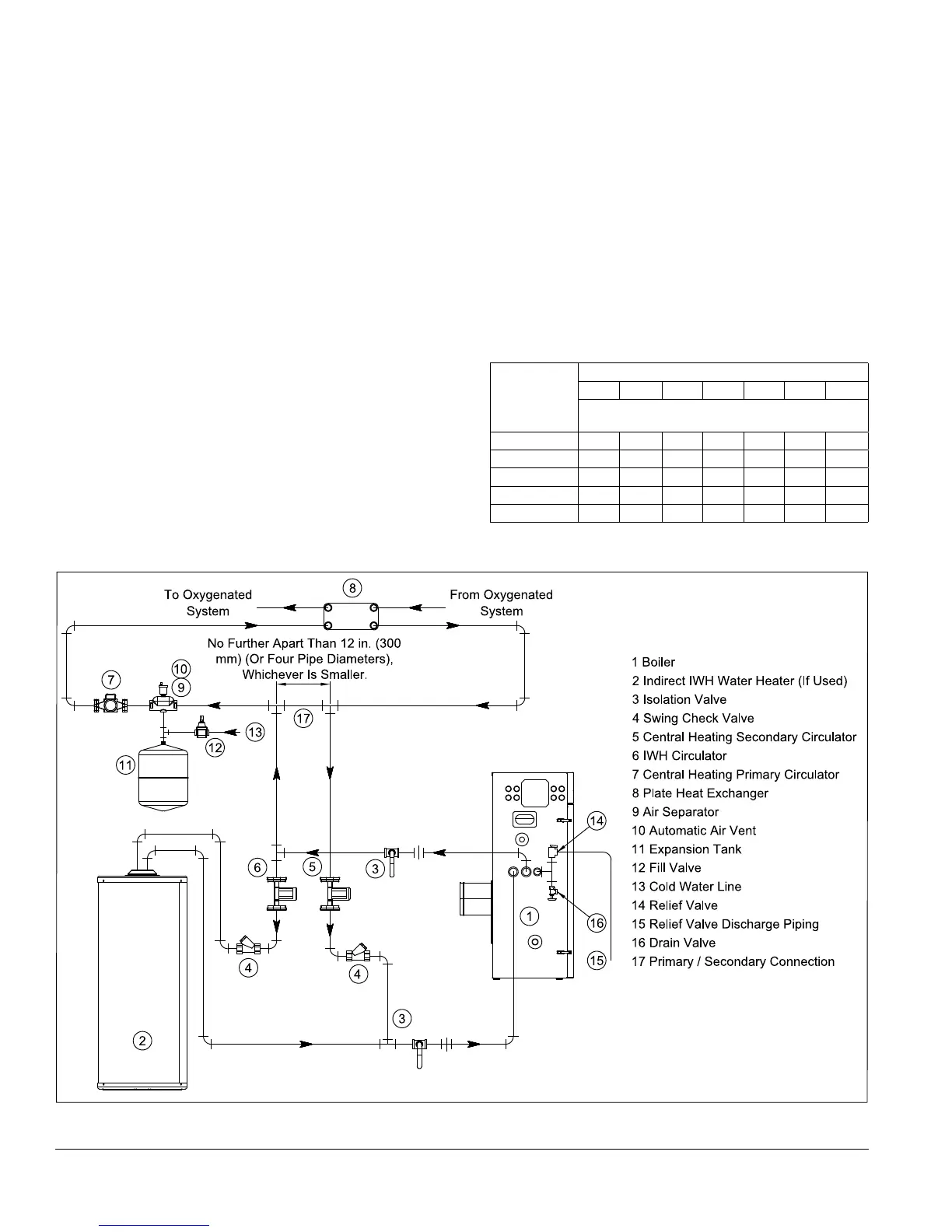
D. Special Situation Installation Requirements
Observe the following guidelines when making the
actual installation of the boiler piping for special
situations:
1. Systems containing high level of dissolved
oxygen – Many hydronic systems contain enough
dissolved oxygen to cause severe corrosion damage
to Alpine boiler heat exchanger. Some examples
include but not limited to:
Radiant systems employing tubing without
oxygen barrier
Systems with routine additions of fresh water
Systems open to atmosphere
If the boiler is used in such a system, it must be
separated from oxygenated water being heated with
a heat exchanger as shown in Figure 23. Consult
the heat exchanger manufacturer for proper heat
exchanger sizing as well as ow and temperature
requirements. All components on the oxygenated
side of the heat exchanger, such as the pump
and expansion tank, must be designed for use in
oxygenated water.
Figure 23: Isolation of the Boiler From Oxygenated Water with A Plate Heat Exchanger

Table of Contents

Related product manuals