EasyManua.ls Logo

andrews MAXXflo - Page 23

andrews MAXXflo
44 pages
Print Icon
To Next Page IconTo Next Page
To Next Page IconTo Next Page
To Previous Page IconTo Previous Page
To Previous Page IconTo Previous Page
Loading...
MAXXo Water Heater
2323
INSTALLATION SECTION 3
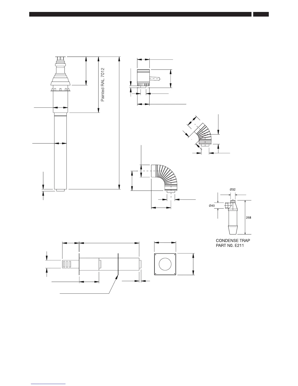
CWH30 & CWH60 Standard Flue System Dimensions
ALL 80/125mm Ø CONCENTRIC FLUE
Ø125
2 09
570
150
125
Ø80
185
20
1350
Ø
123/124
CONDENSATE TRAP
PART No E310
Ø125
100
100
200
Ø125
Ø80
PART No E308
45º ELBOW C/W CLAMP
VERTICAL FLUE TERMI NAL
C/W CLAMP (CONDENSING)
PART No E067
20
90º ELBOW C/W CLAMP
PART No E071
Ø80
200
220
220
610170
Ø80
200 Min
ADJUSTABLE PLATE
HORIZONTAL TERMINAL C/W WALL PLATES
PART No E073
Maintain dimension if
flue is cut
20
CWH30 & CWH60 STANDARD FLUE SYSTEM DIMENSIONS

Table of Contents

Related product manuals