EasyManua.ls Logo

Atlas Copco GA 90 VSD

Atlas Copco GA 90 VSD
114 pages
To Next Page IconTo Next Page
To Next Page IconTo Next Page
To Previous Page IconTo Previous Page
To Previous Page IconTo Previous Page
Loading...
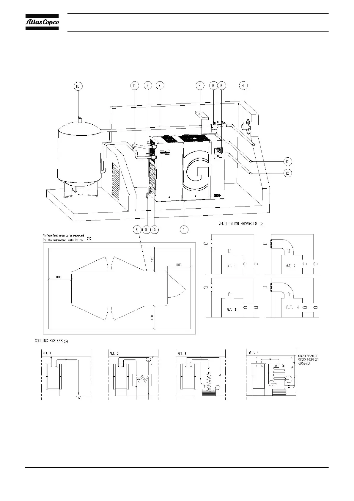
6.2 Installation proposal
Compressor room example
Compressor room example
Text on drawing
Instruction book
72 2920 1634 04

Table of Contents

Related product manuals