EasyManua.ls Logo

Automatic Technology GDO-2 SecuraLife - Spare Parts List

Automatic Technology GDO-2 SecuraLife
20 pages
Print Icon
To Next Page IconTo Next Page
To Next Page IconTo Next Page
To Previous Page IconTo Previous Page
To Previous Page IconTo Previous Page
Loading...
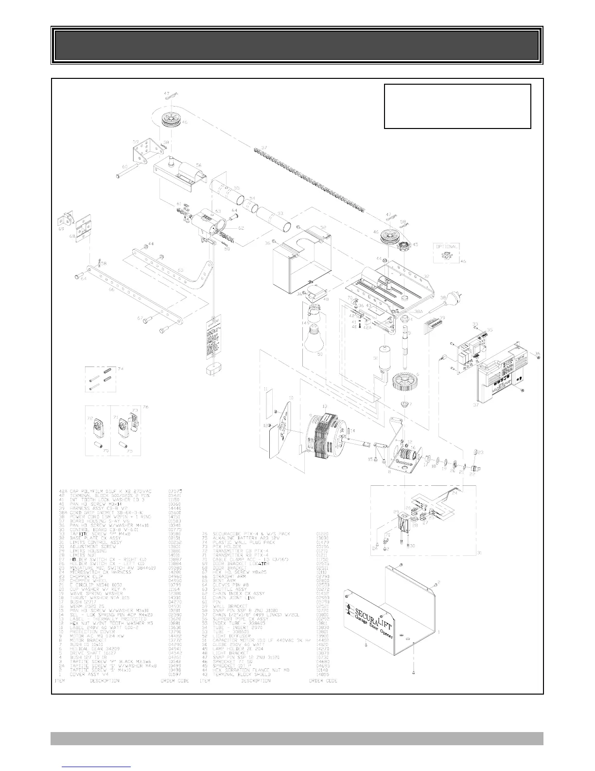
SPARE PARTS LIST
19
WHEN ORDERING SPARE PARTS
PLEASE QUOTE THE ORDER
CODE NUMBER TO YOUR YOUR
INSTALLER/DISTRIBUTOR

Related product manuals