EasyManua.ls Logo

Automatic Technology GDO-2 SecuraLift - Parts List

Automatic Technology GDO-2 SecuraLift
24 pages
Print Icon
To Next Page IconTo Next Page
To Next Page IconTo Next Page
To Previous Page IconTo Previous Page
To Previous Page IconTo Previous Page
Loading...
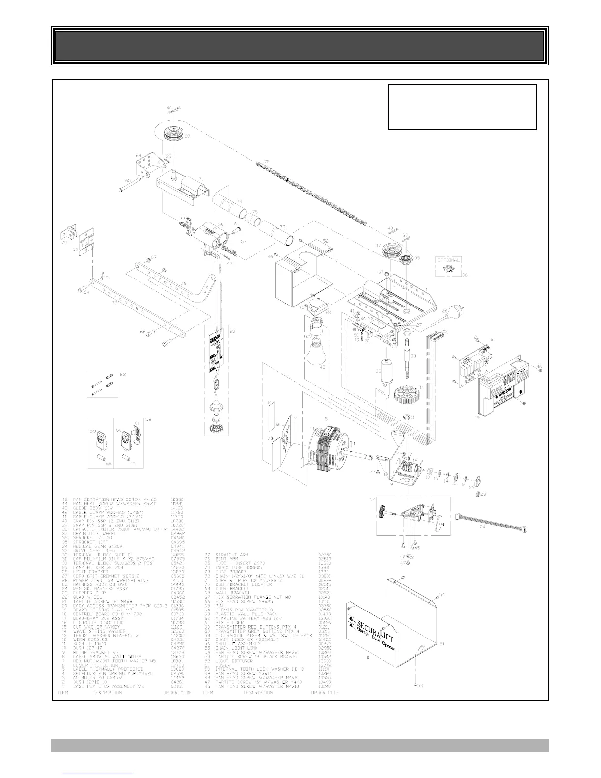
SPARE PARTS LIST
23
WHEN ORDERING SPARE PARTS
PLEASE QUOTE THE ORDER
CODE NUMBER TO YOUR YOUR
INSTALLER/DISTRIBUTOR

Related product manuals