EasyManua.ls Logo

AVS Electronics BF100 R - Page 23

AVS Electronics BF100 R
24 pages
Print Icon
To Next Page IconTo Next Page
To Next Page IconTo Next Page
To Previous Page IconTo Previous Page
To Previous Page IconTo Previous Page
Loading...
- 35 -
IST0570V3.1
ALLARME
NO
NC
+FGUASTO
C
NO
NC
C
OUT
+
- BA
R1
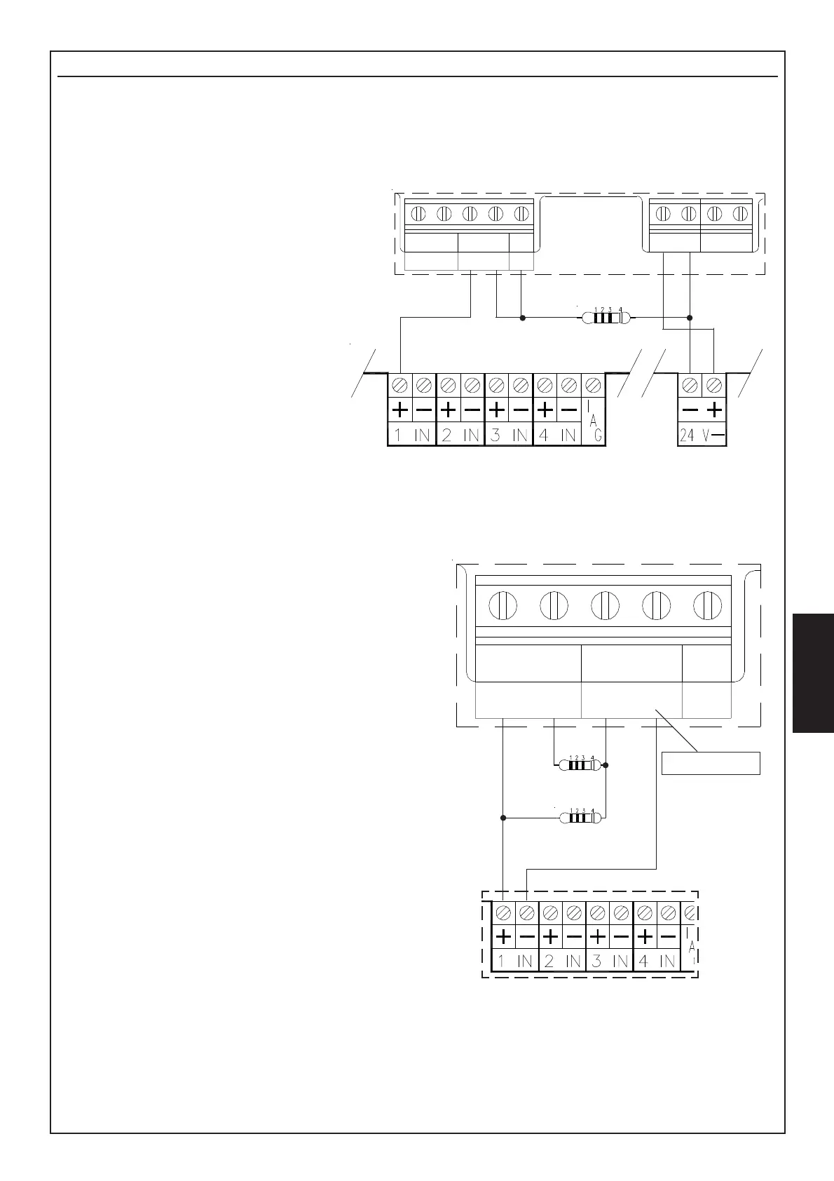
Connexion aux centrales
La barrière BF100 présente :
ALLARME
NO
NC
+F
GUASTO
C
NO
NC
C
OUT
R1
R2
Dans les 2 cas, l’état de fin d’alarme peut s’obtenir également au travers de la clé mécanique
intégrée au module même, si le module BR100 est utilisé.
- Sortie ALARME à relai :
Les contacts de cette sortie peuvent être de
type C/NF ou C/NO, selon le réglage du
cavalier S7 (voir chapitre CAVALIER).
Pour la fin d’état d’alarme de la barrière,
enlever l’alimentation de la barrière pendant
quelques secondes (cavalier S9 ouvert)
Un exemple de connexion, en utilisant ces
contacts, est présenté dans le dessin de droite, où
les contacts d’ALARME sont réglés sur C/NO et
ceux de DÉFAILLANCE sont sur C/NF.
R1 est la résistance de fin de ligne qui est
normalement fournie avec la centrale.
R2 est la résistance d’alarme (pour les
centrales AVS la valeur de cette résistance est
de 680 /1000 Ohm – 3 W) non fournie.
- Sortie OUT + F pour la connexion
directe aux lignes de centrales
antiincendie conventionnelles AVS
(en alarme génère une charge de
680Ohm)
Pour sortir la barrière de sa
condition d’alarme, il suffit
d’effectuer une réinitialisation
directement sur la centrale
(cavalier S9 fermé).
Un exemple de connexion en
utilisant ces contacts est
indiqué dans le dessin à droite, où
R1 est la résistance de fin de ligne
qui est normalement fournie avec la
centrale. Le contact de DÉFAILLANCE est réglé sur C/NF.
DÉFAILLANCE
F
R
A

Related product manuals