EasyManua.ls Logo

Azbil AUR890 Series - Page 34

Azbil AUR890 Series
62 pages
To Next Page IconTo Next Page
To Next Page IconTo Next Page
To Previous Page IconTo Previous Page
To Previous Page IconTo Previous Page
Loading...
26
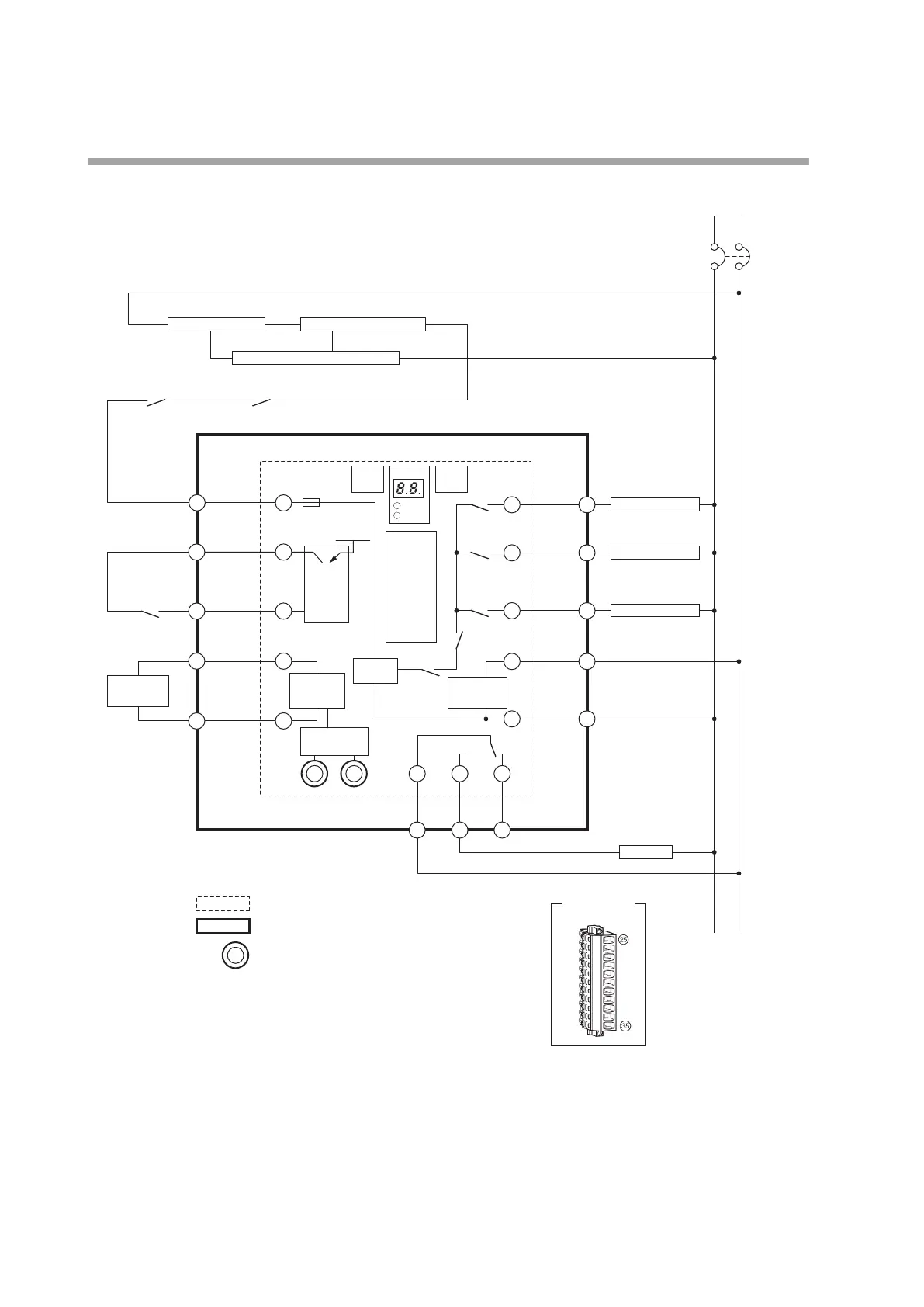
Chapter 4. Explanation of Operation
Non-recycling oil-fired combustion (2-level combustion)
Terminal layout
of connector
for front wiring
*1 Use the external controller for either the power
or for low voltage. If the line voltage controller
is used to start burner controller operation,
connect terminal 17 to terminal 20.
: Terminal numbers of AUR890/BC-R05
F
Low voltage
temp. controller
*1
Flame voltage
circuit
10A
Terminal numbers of Q890A100 base unit (for RA890 replacement)
AUR890/BC-R05A100
5
L1
Circuit
breaker
L2(N)
Line voltage
temp. controller
*1
Prepurge completion signal
1
Burner on-off circuit Limit / interlock circuit
Blower operation circuit / prepurge circuit
AC input
circuit
6
Fuel oil valve
Two-level fuel oil valve
Ignition transformer
8
46
37
12
23
10
25
RESET
switch
DISP
switch
FLAME
ALARM
Display
Combustion
safety
control
circuit
Input
circuit
(24 V DC)
24 V DC
17
T
+
20
T
14
F
G
FV+ FV
-
Alarm
output
COM
15
G
Flame
detector
Flame
detection
circuit
K1
Power
supply circuit
K4
K5
K3
K2
K6
26
: Terminal numbers of Q890A100 base unit
(for RA890 replacement)
: Terminal numbers of the front connector
Alarm
COM
11
Alarm
output
NO
NO
12
Alarm
output
NC
NC

Related product manuals