EasyManua.ls Logo

Balboa Instruments Poolux - Pool Only System with Solar, Cleaner Pump and Water Feature Pump

Balboa Instruments Poolux
76 pages
Print Icon
To Next Page IconTo Next Page
To Next Page IconTo Next Page
To Previous Page IconTo Previous Page
To Previous Page IconTo Previous Page
Loading...
20
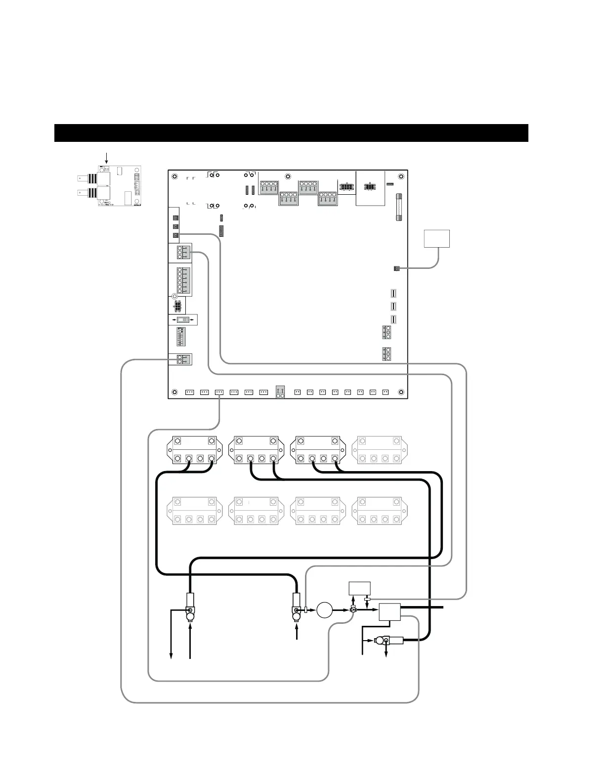
Plumbing Schematic Suggestions (cont’d)
J12
J33
J13
FROM GFCI LOAD
LT2WHT
LIGHT 1LIGHT 2
LT1
J14
TB12
S1
IN1+
IN1-
IN2+
V+
IN
GRD
WATER
ANALOG
DIGITAL
IN2-
IN3+
IN3-
TB1
TB2
J8
J1
J11
GND
B
A
9V
J7
TB5
J2 ICSP
POC MODULES
5V
9V
AIR
J9
SOLAR
J10
SETUP RUN
DIP SWITCH
AUX INPUTS
PRESSURE
COM PORTS
WIRELESS
TRANSCEIVER
FUSE 4A 250V
POOL MON/
TECH PANEL
EXPANSION BOX
COM A
COM B
COM C
TEMP
SENSORS
DOLPHIN
RF
GND
B
A
9V
TB5
GND
B
A
9V
TB5
GND
B
A
9V
TB5
J32 J5
TB4
24VAC IN
F1
S2
J31
LOW
VOLTAGE
HEATER
1
TB3
TB10
TB11
Rel 8
J22
Rel 7
J21
Rel 6
J20
Rel 5
J19
Rel 4
J18
Rel 3
J17
Rel 2
J16
Rel 1
J15
Val 6
J28
Val 5
J27
Val 4
J26
Val 3
J25
Val 2
J24
Val 1
J23
FILL VALVE
ORP
pH
COND ORP PH
CAL
Filter
Pump
0
2468
1
Relay 2
0
2468
1
Relay 3
0
2468
1
Relay 4
0
2468
1
Relay 8
0
2468
1
Relay 7
0
2468
1
Relay 6
0
2468
1
Relay 5
0
2468
1
R
e
l
ay 6
0
2
4
6
8
1
R
e
l
ay 5
0
2
4
6
8
1
R
e
l
ay 8
0
2
4
6
8
1
R
e
l
ay 7
0
2
4
6
8
1
R
elay 4
0
2
4
6
8
1
CHLORINE
GENERATOR
CONTROL
FILTER
PRESSURE
(OPTIONAL)
SOLAR
AIR
WATER
TEMP
SENSORS
ECOMATIC
CHLORINE GENERATOR
(OPTIONAL)
CHEMICAL
AUTOMATION
(OPTIONAL)
Water
Feature
Pool
Drain/
Skimmer
Aux
Pump
Pool Drain/
Skimmer/
Vacuum Line
Filter
Pool
Return
Pool
Cleaner
Filter
Pump
Cleaner
Pump
Solar
(Future)
Heater *
Heater
Line Voltage
Heater
Low Voltage
Control Wire
* Note: Heater show
n
as wired “Hot”
CONDUCTIVITY SENSOR LOCATION
NOTE: pH/ORP and Chlorine Generator board shown is optional
Fig. 9 Pool Only System with Solar, Cleaner Pump and Water Feature Pump
POOL ONLY SYSTEM WITH SOLAR, CLEANER PUMP AND WATER FEATURE PUMP

Table of Contents

Related product manuals