EasyManua.ls Logo

Balboa Instruments Poolux - The Poolux Control System; Inside the System Enclosure

Balboa Instruments Poolux
76 pages
Print Icon
To Next Page IconTo Next Page
To Next Page IconTo Next Page
To Previous Page IconTo Previous Page
To Previous Page IconTo Previous Page
Loading...
24
The Poolux Control System
J12
J33
D36
1
J13
FROM GFCI LOAD
CHLORINE GEN.
CONTROL
LT2WHT
LIGHT 1LIGHT 2
RELAY 8RELAY 7RELAY 6RELAY 5RELAY 4RELAY 3RELAY 2RELAY 1FILL VALVE
VALVE 6VALVE 5VALVE 4VALVE 3VALVE 2VALVE 1
LT1
J14
11
11111111
1
1
LT1LT2
J22J21J20J19J18J17J16J15
TB12
J28
1
J27
1
J26
J4
J6
1
1
J25
1
J24
1
J23
S1
IN1+
IN1-
IN2+
V+
IN
GRD
WATER
ANALOG
DIGITAL
IN2-
IN3+
IN3-
TB1
TB2
J8
J1
J11
GND
B
A
9V
J7
TB5
J2 ICSP
POC MODULES
5V
9V
AIR
J9
SOLAR
J10
SETUP RUN
DIP SWITCH
AUX INPUTS
PRESSURE
COM PORTS
WIRELESS
TRANSCEIVER
FUSE 4A 250V
POOL MON/
TECH PANEL
EXPANSION BOX
COM A
COM B
COM C
TEMP
SENSORS
DOLPHIN
RF
1
1
1
1
1
11
1
GND
B
A
9V
TB5
1
GND
B
A
9V
TB5
1
GND
B
A
9V
TB5
J32 1 J5
TB4
24VAC IN
F1
1
1
1
S2
J31
LOW
VOLTAGE
HEATER
1
TB3
TB10
TB11
ORP
pH
COND ORP PH
CAL
Sanitization
S
e
l
e
c
t
Min
1
2
On
Off
Operation
Mode
FILTER
AUXILIARY
AUXILIARY
AUXILIARY
AUXILIARY
AUXILIARY
AUXILIARY
AUXILIARY
LCD Contrast
System Cont rol
Max
Stand By
Winter Mode
Cell Output
Force Filter
Flow
Pool Control
Relay 5
0
2468
1
Relay 1
0
2468
1
Relay 6
0
2468
1
Relay 2
0
2468
1
Relay 7
0
2468
1
Relay 3
0
2468
1
Relay 8
0
2468
1
Relay 4
0
2468
1
1
8
R
e
l
ay 7
0
1
2
4
6
8
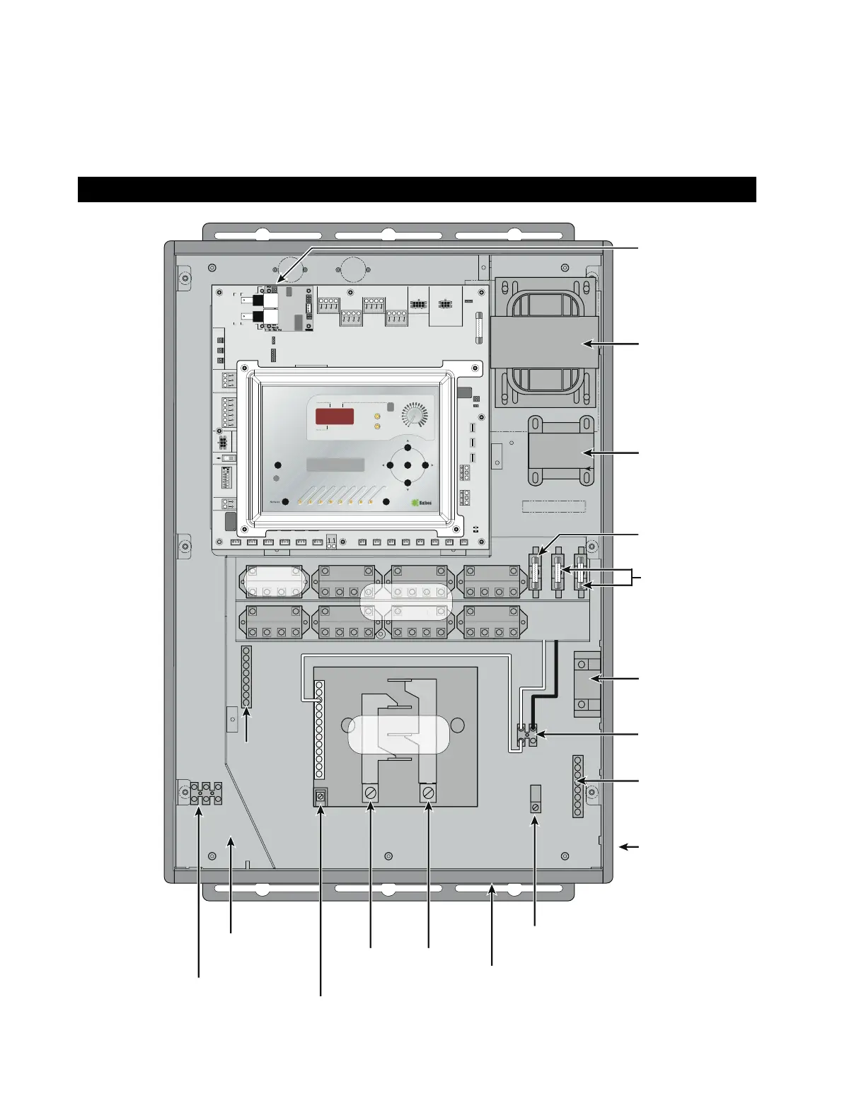
Circuit Breaker
Subpanel
Low Voltage
Raceway
High Voltage Entry
14 Holes on Bottom
of Enclosure
Optional
Chlorine Gen.
Transformer
Main Board
Transformer
Equipment
Ground Bar
Light Fuses
Chlorine Gen. Fuse
GFCI for Light
(Test and Reset
Outside Box)
Control Power
Terminal Block
ECOmatic Cell
Terminal Block
Equipment
Ground Bar
Neutral Connections
Line 1
Hot
Line 2
Hot
Bonding Lug
(Outside Box)
R
e
l
a
y
1
0
2
4
6
8
1
Filter Pump
Optional Devices
7 Relays
Main
Ground Lug
Optional Chemical
Sensor
Conductivity Link
Fig. 12 System Control Center Wiring
The System enclosure includes a number of features that are often considered optional like dimmable
incandescent lighting. Other features like the fill valve are unique. The integration of the optional chlorine
generation capablility rounds out the super-capable Poolux controller from Balboa.
INSIDE THE SYSTEM ENCLOSURE

Table of Contents

Related product manuals