EasyManua.ls Logo

Bandit 2550 - Swing Out and Curtain Components

Bandit 2550
98 pages
Print Icon
To Next Page IconTo Next Page
To Next Page IconTo Next Page
To Previous Page IconTo Previous Page
To Previous Page IconTo Previous Page
Loading...
Bandit
82
Copyright 4/21
MODELS 2550/2550T
Parts may not be exactly as shown.NOTICE
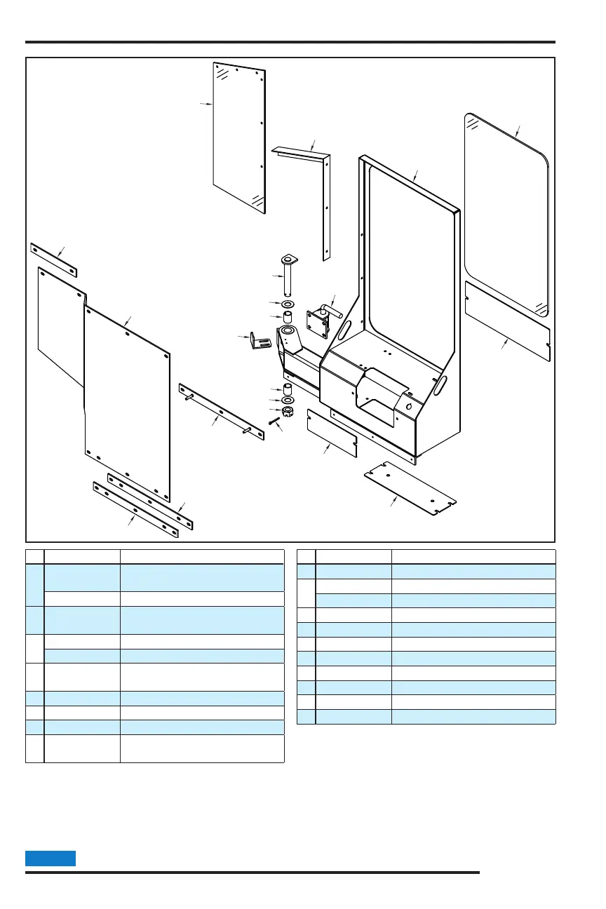
SWING OUT COMPONENTS
# Part Number Description
1
203-1000-21
Swing Out Assembly
(Includes 1 - 7, 11, & 14 -16)
203-2000-39 Swing Out Weldment
2 203-3001-64
Swing Out Arm Access Door
- Large
3
996-300464 Swing Out Window
900-8900-04 Window Seal (Not Shown)
4 203-2000-54
Side Window Assembly
(Includes 5)
5 203-3002-23 Side Window Clear Vinyl
6 203-2000-38 Swing Out Pin
7 203-3002-14 Swing Out Spacer
8 900-1902-50
Split Bushing -
1 1/4” OD x 1” ID x 1 1/2”
# Part Number Description
9 203-3001-86 Limit Switch Engage
10
203-2000-42 Spring Pin Assembly
900-7900-96 Rubber Cap for Spring Lock
11 900-4909-08 1”-8NC Slotted Hex Nut
12 900-4911-75 3/16” x 2 Cotter Pin
13 203-2000-43 Curtain Strap - Long
14 203-3001-73 Chip Curtain
15 203-3001-75 Curtain Strap
16 203-3001-76 Bottom Curtain Strap
17 203-3001-95 Swing Out Front Cover
18 203-3001-88 Swing Out Bottom Cover
5
4
1
2
18
17
13
16
16
14
15
8
9
8
7
6
10
7
11
12
3

Related product manuals