EasyManua.ls Logo

Bard CH3S1 - Figure 4 Mounting Instructions CH4 S1;CH5 S1

Default Icon
25 pages
Print Icon
To Next Page IconTo Next Page
To Next Page IconTo Next Page
To Previous Page IconTo Previous Page
To Previous Page IconTo Previous Page
Loading...
Manual 2100-455A
Page 11 of 25
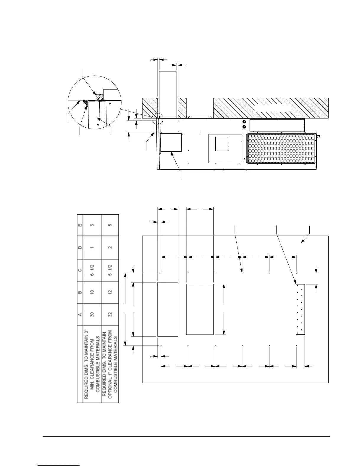
FIGURE 4
MOUNTING INSTRUCTIONS
$
%
'

&







(


&
'





6XSSO\2SHQLQJ
5HWXUQ2SHQLQJ
%RWWRP:DOO%UDFNHW
,QVWDOOEHIRUHXQLW
8QLW0RXQWLQJ
+ROHVSODFHV
:DOO
PLQ
PLQ


2SWLRQDO
7RS2XWOHW
:DOO6HFWLRQ
6XSSO\'XFW
5HWXUQ$LU
2SHQLQJ
+HDWHU
$FFHVV
3DQHO
)RDP
5DLQ)ODVKLQJVXSSOLHG
$SSO\DEHDGRIFDXON
DORQJHQWLUHOHQJWKRIWRS
DQGEHKLQGVLGHPRXQWLQJ
IODQJHV
7RS
&+6DQG&+6:DOO0RXQWLQJ,QVWUXFWLRQV
0,6$

Table of Contents

Related product manuals