EasyManua.ls Logo

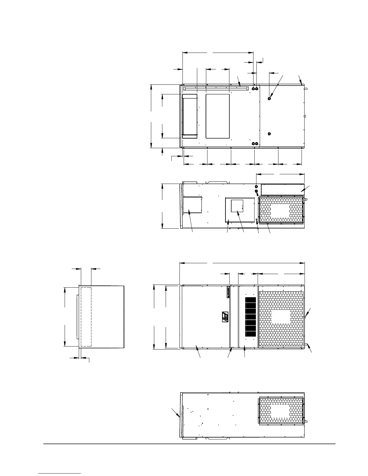
Bard CH3S1 - Figure 1 Unit Dimensions CH3 S1

Default Icon
25 pages
Print Icon
To Next Page IconTo Next Page
To Next Page IconTo Next Page
To Previous Page IconTo Previous Page
To Previous Page IconTo Previous Page
Loading...
Manual 2100-455A
Page 5 of 25
FIGURE 1
UNIT DIMENSIONS
16"
16"
16"
16"
16"
31 5/8"
32 3/4"
84 11/16"
43 7/8"
42 3/16"
13 3/8"
48 1/16"
5 13/16"
"
31"
6 7/8"
39 7/8"
9 13/16"
15 7/8"
29 7/8"
6 1/8"
1 3/8"
43"
6 9/16"
7/8"
2 1/4"
8 9/16"
Left Side View
(12) Wall
Right Side View Back View
Entrances
Top Rain
Outlet
Grille
Cond.
"CH3S1" Unit Dimensions
Grille
Outlet
Opt. High Voltage
Cond.
Inlet
Supply
Grille
Flashing
Opening
Opening
Slope Top
Cond.
Return
Optional Top Outlet
Blower Access
Door
Filter Access
Door
Vent Option
Access Door
Heater Access
Door
Control Panel
Access Door
Door
C. Breaker
Low Voltage
Entrance
Entrance
High Voltage
Top View
MIS-2146
Mounting Holes
Access Door
Evap. Drain
Hose
Front View
Drain for optional
drain pan

Table of Contents

Related product manuals