EasyManua.ls Logo

Bard PH11242 - Figure 6 Prefabricated Rood Curb Specifications; Table 6 Roof Curb Dimensions

Default Icon
39 pages
Print Icon
To Next Page IconTo Next Page
To Next Page IconTo Next Page
To Previous Page IconTo Previous Page
To Previous Page IconTo Previous Page
Loading...
Manual 2100-354
Page 12
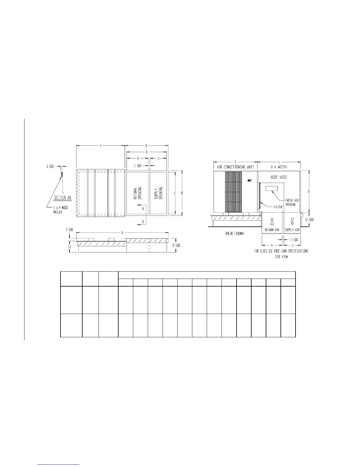
FIGURE 6
PREFABRICATED ROOF CURB SPECIFICATIONS
HEAVY GAUGE GALVANIZED WITH WOOD NAILING STRIP, WELDED/LEAKPROOF
ONE PIECE CONSTRUCTION – READY TO INSTALL
TABLE 6
ROOF CURB DIMENSIONS
ledoMtinU
fooR
dooH
ledoM
fooR
bruC
ledoM
sliateDbruCfooR
ABCDEFGH I JKL
*4211HP
*4221HP
*0311HP
*0321HP
*6311HP
*6321HP
63-EHR300-2409573.0852.0452.73573.83573.532452.42521.91881.8457.41521.8352.83
*2411HP
*2421HP
*8401HP
*8421HP
*0601HP
06-EHR400-2409573.28521.44521.14573.83573.534452.13521.910557.412452.83
*
Revision Level
MIS-1177C

Table of Contents

Related product manuals