EasyManua.ls Logo

Basic American Zenith 7000 - 7000 Series Electrical Cabling Diagram

Basic American Zenith 7000
34 pages
Print Icon
To Next Page IconTo Next Page
To Next Page IconTo Next Page
To Previous Page IconTo Previous Page
To Previous Page IconTo Previous Page
Loading...
Basic American Medical Products, a division of GF Health Products, Inc. www.grahamfield.com 999-0843-190A Service Manual
15
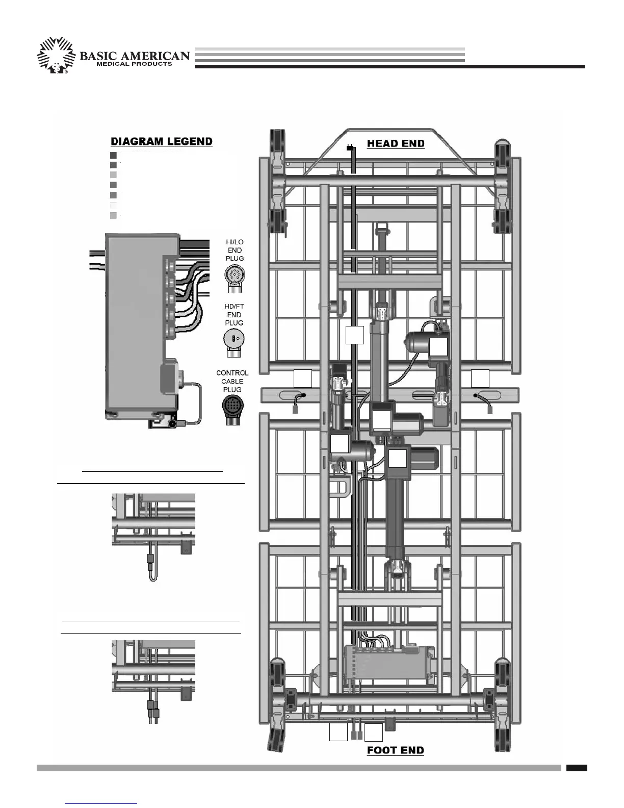
7000 SERIES ELECTRICAL CABLING DIAGRAM
Hi/Lo (Hd)
Hi/Lo (Ft)
Foot
Head
Control
Ground
wire from
box or
power cord
Control Cable plugged directly
into Pendant T-Cable for shipping
Control Cable plugs directly into staff cable
Pendant T-Cable plugs directly into staff cable
(PLEASE SEE PAGE 10)
POWER CABLE
T-CABLE for PENDANT
HI/LO CABLE (HEAD)
HI/LO CABLE (FOOT)
FOOT CABLE
HEAD CABLE
CONTROL CABLE
π
Œ
ª
º
Œ
º
π
ª
Power
T-CABLE PLUGGED INTO
CONTROL CABLE WHEN SHIPPED
UNPLUG FOOT END CABLES TO
PLUG-IN YOUR STAFF CONTROL
ZENITH SERIES

Table of Contents

Related product manuals