EasyManua.ls Logo

Baxi TXW1AC - Ligações Elétricas

Baxi TXW1AC
Print Icon
To Next Page IconTo Next Page
To Next Page IconTo Next Page
To Previous Page IconTo Previous Page
To Previous Page IconTo Previous Page
Loading...
Ligar o extremo do cabo de
ligação longo ao conector
do controlo por cabo
Ligar o outro extremo do
cabo de ligação longo ao
cabo curto
Ligar o extremo do
cabo curto (conector
branco) à placa
eletrónica.
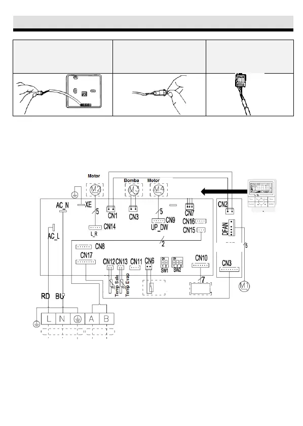
UNIDADES INTERIORES MONORZ(G)N(C/K/D) (50/70/100/120/140/160)
1.
No caso das unidades de conduta, o aparelho será fornecido com controlo por
cabo.
2.
O conector branco do controlo deverá ser ligado ao conector “CN7” da placa de
controlo da unidade interior de conduta tal e como se indica na figura:
LIGAÇÕES ELÉTRICAS
lâmina
lâmina
ambiente
Controlo
por cabo
Placa eletrónica
de controlo
Ecrã
Bomba
água
Alimentação
Comunicação
Motor
ventilador
Placa eletrónica
de potência

Related product manuals