EasyManua.ls Logo

BeaconMedaes HTM - 5 Installation; Dimension Drawings

BeaconMedaes HTM
90 pages
Print Icon
To Next Page IconTo Next Page
To Next Page IconTo Next Page
To Previous Page IconTo Previous Page
To Previous Page IconTo Previous Page
Loading...
4233 5000 13
51
5 Installation
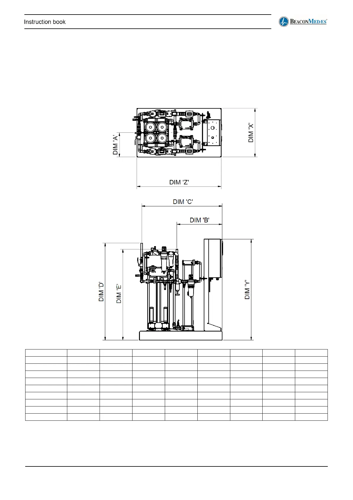
5.1 Dimension drawings
MODEL
DIM X
DIM Y
DIM Z
DIM A
DIM B
DIM C
DIM D
DIM E
dMED 025
750
1578
1300
375
712
1226
1382
1469
dMED 035
750
1602
1300
375
728
1225
1372
1481
dMED 045
750
1580
1300
375
715
1260
1043
1038
dMED 075
750
1578
1300
375
713
1272
1240
1325
dMED 090
750
1580
1300
375
715
1245
1405
1454
dMED 110
750
1685
1300
375
706
1271
1444
1685
dMED 150
750
1904
1600
375
896
1006
1877
1695
dMED 220
1080
1574
1900
540
1156
1278
1484
1063
dMED 300
1080
1850
1900
540
1139
1290
1852
1068

Related product manuals