EasyManua.ls Logo

Bitzer HS 53 - Page 60

Bitzer HS 53
96 pages
Print Icon
To Next Page IconTo Next Page
To Next Page IconTo Next Page
To Previous Page IconTo Previous Page
To Previous Page IconTo Previous Page
Loading...
60 SH-100-3
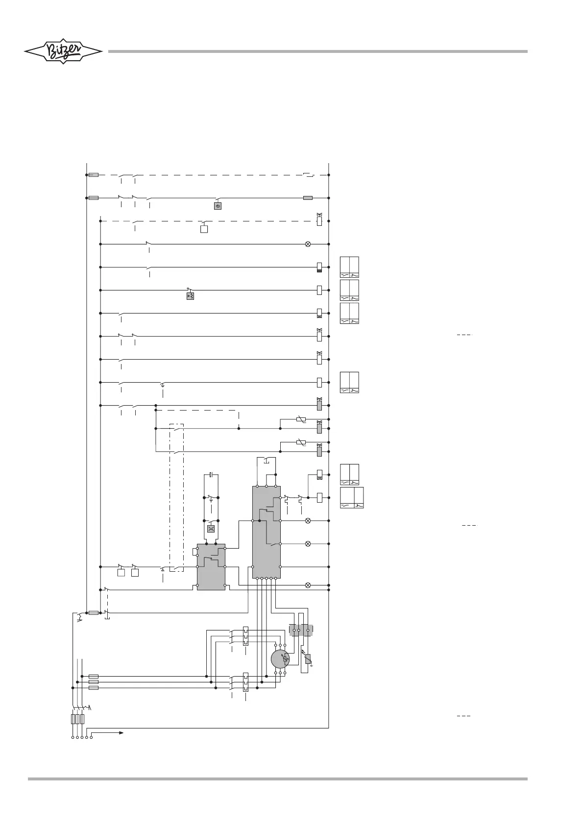
HS.64 & HS.74 Standard
INT389R Motorschutz & Druckgas-
Überhitzungsschutz
SE-B2 Öldurchfluss-Überwachung
HS.64 & HS.74 Standard
INT389R
Motor protection & discharge
gas temperature protection
SE-B2 Oil flow monitoring
HS.64 & HS.74 Standard
INT389R
Protection du moteur et contre la
surchauffe de gaz au refoulement
SE-B2 Contrôle de débit d'huile
4321 876
5
13
1211
109
14
15 16
17
18 19 20
21 22
23
24
K1
Y6
Y7
K3T
0.5 s
20 s
F14
4
F13
2
H1
H2
K4T
20
F6
P<
F5
P>
B2
B1
S2
S1
01
F3
F4.1 F4.2
4A
F2
L1
L2
L3
N
PE
F1
Q1
1
0
K1
10
K2
15
F13
10
F14
10
1
2
3
7
8
9
M3~
schwarz/black/noir
braun/brown/marron
blau/blue/bleu
3
4
5
R2
H3
K1
10
K1
10
K1
10
U U
4/4/4/14
22/24
17/23
15
K2
15
10
K4
19
K3T
11
K1T
K2
L1.1
N
L1.2
Y1
ECO (Option)
20/23
21
K4
Y8
Y2
K4T
120 s
7
K1
10
K2
15
Y3
R1
R9
F8
1
2
K1
10
K1
10
K2
15
K2
15
K4
19
K4
19
H4
ECO (Option)
K2
15
F12
P<
2/2/2/14
15/16
18/24
17/23
K1
10
(Option)
N
L
11
12 14
SE-B2
B1 B2
1
2
F7
K1T
18
C1
+
N
L1
L2
L3
1
2
L
11
24 14
INT389R
Z
B1
B2
12
S3
Tenir compte de la séquence de com-
mande Y6 / Y7 (fig. 4)!
Les options sont signalées par des
lignes hachurées.
Légende voir pages 56 et 57.
Détails concernant la commande par
pump down supplémentaires voir figures
25 et 26.
Consider control sequenceY6 / Y7
(fig. 4)!
Options are indicated by dashed lines.
For legend refer to pages 56 and 57.
Details concerning the pump down sys-
tem see figures 25 and 26.
Steuerungssequenz Y6 / Y7 beachten
(Abb. 4)!
Optionen sind mit gestrichelten Linien
dargestellt.
Legende siehe Seite 56 und 57.
Details zur Abpumschaltung siehe Abb.
25 und 26.

Other manuals for Bitzer HS 53

Related product manuals