EasyManua.ls Logo

Bitzer HS 53 - Page 94

Bitzer HS 53
96 pages
Print Icon
To Next Page IconTo Next Page
To Next Page IconTo Next Page
To Previous Page IconTo Previous Page
To Previous Page IconTo Previous Page
Loading...
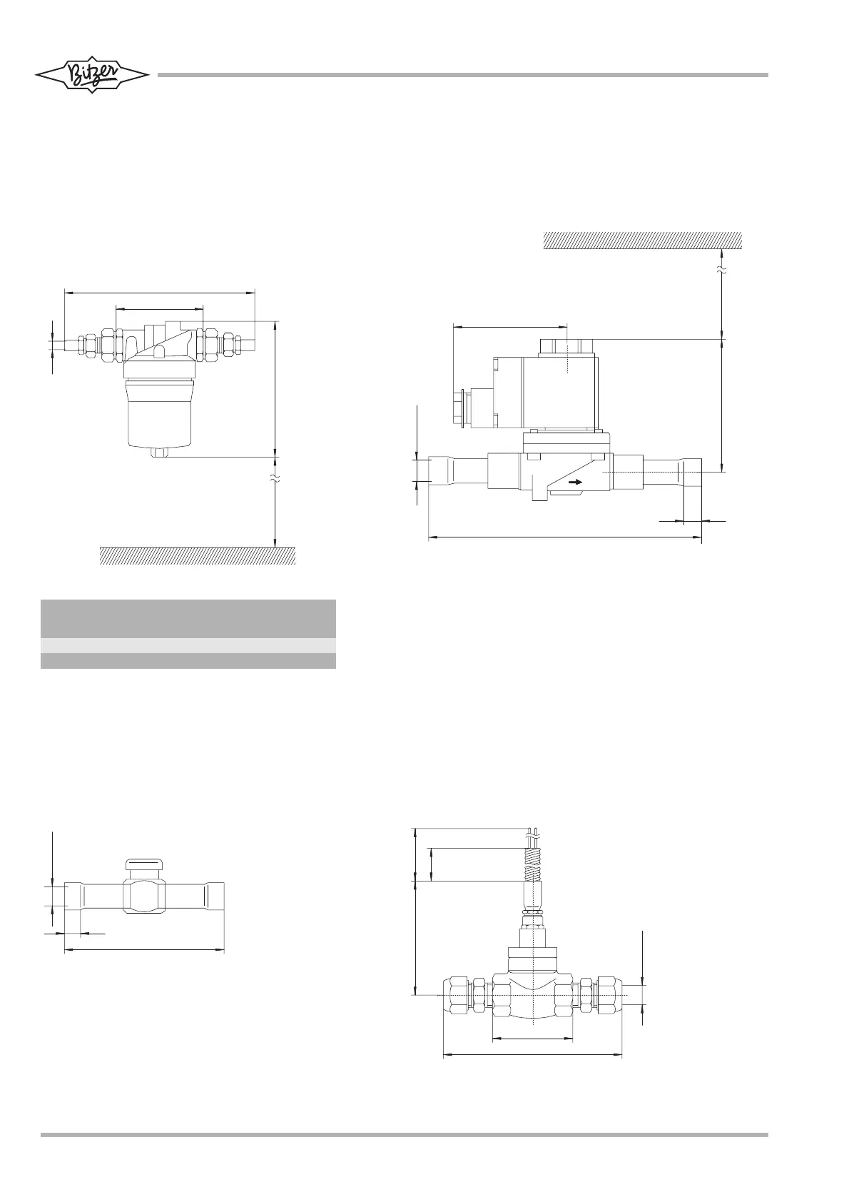
Dimensional drawings
Accessories for oil line
Croquis cotés
Accessoires pour conduite d'huile
Maßzeichnungen
Zubehör für Ölleitung
94 SH-100-3
Ø
A
B
m i n . X
2 5 0
6 7
9 5
1 5 0
9 5 0
7 5 0
Ø 1 6 ( 5 / 8 ' ' )
AB Ø X
für / for / pour mm mm mm mm
HS.53 185 95 16 (5/8'') 80
HS.64 & HS.74 334 150 22 (7/8'') 110
Öldurchfluss-Wächter
Oil flow switch
Contrôleur de débit d'huile
Ø 1 6 ( 5 / 8 ' ' )
1 1 1
1 2
Ölschauglas
Oil sight glass
Voyant d'huile
8 0
m i n . 6 5
8 0
1 7
1 7 6
1 7
Ø 1 6 ( 5 / 8 ' ' )
Magnetventil
Solenoid valve
Vanne magnétique
Ölfilter
Oil filter
Filtre à l'huile

Other manuals for Bitzer HS 53

Related product manuals