EasyManua.ls Logo

Bitzer HS.85 - Page 62

Bitzer HS.85
100 pages
Print Icon
To Next Page IconTo Next Page
To Next Page IconTo Next Page
To Previous Page IconTo Previous Page
To Previous Page IconTo Previous Page
Loading...
62 SH-110-2
1 2 3 4 5 6 7 8 9 1 0 1 1 1 2 1 3 1 4 1 5 1 6 1 7 1 8 1 9 2 0 2 1 2 2 2 3 2 4
K 1
1 0
K 2
2 4
Y 6
C R 3C R 2
C R 4
L 1
L 2
L 3
N
P E
F 1
1
0
Q 1
F 2
K 2
2 4
S 2
F 1 4
1 0
K 2
2 4
0 . 5 s
2 / 2 / 2 / 1 5
2 2 / 2 4 / 5 2
2 0 / 2 3 / 5 1
2 4
F 1 3
2
M 1
1
2
3
R 3 - 8
T 1
7
8
9
s c h w a r z / b l a c k / n o i r
b r a u n / b r o w n / m a r r o n
b l a u / b l u e / b l e u
R 2
M 3
T 2
M 3
H 2
0 1
F 3
S E - C 2
N
L
L 3
L 2
L 1
1
2
2 1
7
F 1 4
4
S 1
1 1
2 4
1 2 1 4
K 3 T
K 1
1 0
F 1 3
1 0
H 1
Y 5 Y 7 Y 2 Y 3
K 1 K 2
K 1
1 0
K 1
1 0
K 3 T
1 1
K 1
1 0
K 2
2 4
8
5
6
F 9
p
1
11
UUU
L i m i t
C R 5 0 %
L i m i t
C R 2 5 %
K 2
2 4
F 7
4
3
S 4
H 5
S E - B 2
N
L
1 2
1 4
1 1 B 1 B 2
1
2
F 1 0
p
K 1
1 0
K 2
2 4
L 1 . 1
L 1 . 2
N
4 / 4 / 4 / 1 4
1 5 / 3 1 / 5 2
1 2 / 2 0 / 2 3
5 1
F 5
B 2
P >
F 6
P <
K 4 T
4 2
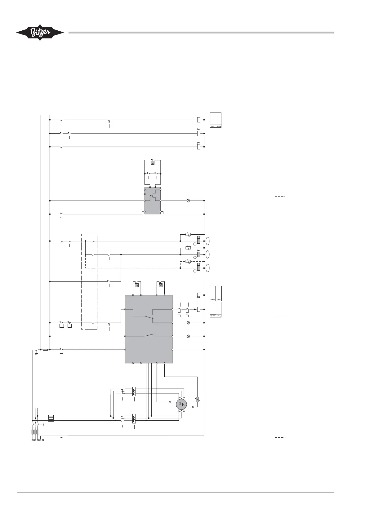
Stufenlose Leistungsregelung
optionale Ausführung mit SE-C2
Infinite capacity control
optionai version with SE-C2
Régulation de puissance en continu
version optionale avec SE-C2
Temps d'impulsion environ 0,5 s .. max. 1 s,
dépendant de la caractèristique de l'installa-
tion, voir aussi chapitre 2.6
Les options sont signalées par des lignes
hachurées.
Fonctionnement ECO (option), contrôle de
niveau d’huile et des chauffages voir page
64.
Légende voir pages 58 et 59.
Pulsing time approx. 0.5 s .. max. 1 s,
depending on system characteristic,
see also chapter 2.6
Options are indicated by dashed lines.
ECO operation (option), oil level switch
and heaters see page 64.
For legend refer to pages 58 and 59.
Impulszeit ca. 0,5 s .. max. 1 s,
abhängig von Anlagen-Charakteristik,
siehe auch Kapitel 2.6
Optionen sind mit gestrichelten Linien
dargestellt.
ECO-Betrieb (Option), Ölniveau-Über-
wachung und Heizungen siehe Seite 64.
Legende siehe Seiten 58 und 59.

Related product manuals