EasyManua.ls Logo

Bitzer HS.85 - Page 63

Bitzer HS.85
100 pages
Print Icon
To Next Page IconTo Next Page
To Next Page IconTo Next Page
To Previous Page IconTo Previous Page
To Previous Page IconTo Previous Page
Loading...
63SH-110-2
F 7
1 2 3 4 5 6 7 8 9 1 0 1 1 1 2 1 3 1 4 1 5 1 6 1 7 1 8 1 9 2 0 2 1 2 2 2 3 2 4 2 5
K 1
1 0
K 2
2 4
Y 5
C R 3C R 2
C R 1
C R 4
U
K 5 T
2 5
4 / 4 / 4 / 1 5
1 5 / 1 6 / 2 5
3 1 / 5 2
1 2 / 2 0 / 2 3
5 1
1 6
1 0 s / 1 0 s
1
L 1
L 2
L 3
N
P E
F 1
1
0
Q 1
F 2
K 2
2 4
S 2
F 1 4
1 0
K 2
2 4
0 . 5 s
2 / 2 / 2 / 1 5
1 6 / 2 2 / 2 4
2 5 / 5 2
2 0 / 2 3 / 5 1
2 4
F 1 3
2
M 1
1
2
3
R 3 - 8
T 1
7
8
9
s c h w a r z / b l a c k / n o i r
b r a u n / b r o w n / m a r r o n
b l a u / b l u e / b l e u
R 2
M 3
T 2
M 3
H 2
0 1
F 3
F 5
B 2
P >
K 4 T
4 2
S E - C 2
N
L
L 3
L 2
L 1
1
2
2 1
7
4
3
F 1 4
4
S 1
1 1
2 4
1 2 1 4
K 3 T
K 1
1 0
F 1 3
1 0
H 1
F 6
P <
K 2
2 4
Y 4 Y 6 Y 7 Y 2 Y 3
K 1 K 2
K 5 T
K 1
1 0
K 2
2 4
K 1
1 0
K 1
1 0
K 1
1 0
K 2
2 4
K 3 T
1 1
K 1
1 0
K 2
2 4
8
5
6
F 9
p
L i m i t
C R 5 0 %
L i m i t
C R 2 5 %
S 4
H 5
S E - B 2
N
L
1 2
1 4
1 1 B 1 B 2
1
2
F 1 0
p
K 1
1 0
K 2
2 4
L 1 . 1
L 1 . 2
N
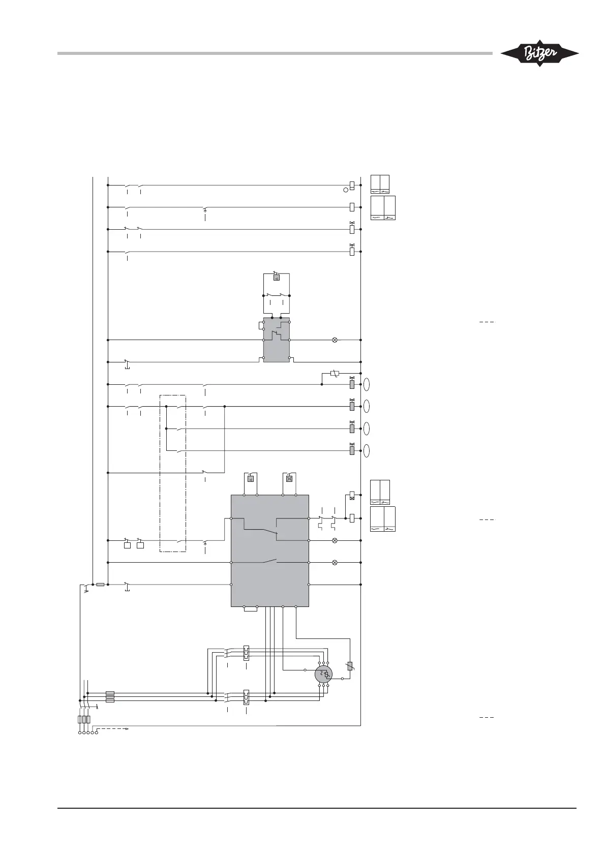
4-stufige Leistungsregelung
optionale Ausführung mit SE-C2
4-step capacity control
optional version with SE-C2
Régulation de puissance à 4 etages
version optionale avec SE-C2
Relais batteur ajustable 10 s / 10 s,
voir aussi chapitre 2.6 et 2.7
Les options sont signalées par des lignes
hachurées.
Fonctionnement ECO (option), contrôle de
niveau d’huile et des chauffages voir page
64.
Légende voir pages 58 et 59.
Adjustable time pulse relais 10 s / 10 s,
see also chapter 2.6 and 2.7
Options are indicated by dashed lines.
ECO operation (option), oil level switch
and heaters see page 64.
For legend refer to pages 58 and 59.
Einstellbares Zeittakt-Relais 10 s / 10 s,
siehe auch Kapitel 2.6 und 2.7
Optionen sind mit gestrichelten Linien
dargestellt.
ECO-Betrieb (Option), Ölniveau-Über-
wachung und Heizungen siehe Seite 64.
Legende siehe Seiten 58 und 59.

Related product manuals