EasyManua.ls Logo

Bitzer HS.8851 - Raccords Et Croquis Cotés

Bitzer HS.8851
89 pages
Go to English
Print Icon
To Next Page IconTo Next Page
To Next Page IconTo Next Page
To Previous Page IconTo Previous Page
To Previous Page IconTo Previous Page
Loading...
SB-110-470
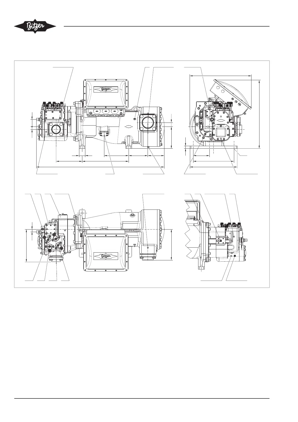
4.6 Raccords et croquis cotés Légende des positions de raccordement, voir tableaux
6, page 72.
256
242
188 162
457
1256
71
26
214
60
40
DL
SL
160
400
465
604
679
25
1/8-27 NPTF
11
5
Ø22 (7/8'')
1/4-18 NPTF
7
1/8-27 NPTF
Ø17
318
25
302
100%
CR4
25%
CR3
50%
CR2
75%
CR1
1/8-27 NPTF
2 (LP)
13 10 14 15
15
14
16
7/16-20 UNF
13
1/8-27 NPTF
3
4/18
1a (HP)
1/4-18 NPTF
6
1/8-27 NPTF
1 (HP)
Ø76 (3 1/8'')
9
M10x20
Ø105 (4 1/8'')
Fig.7: Croquis coté HS.8551 .. HS.8571
Légende des positions de raccordement, voir tableaux
6, page 72.

Table of Contents

Related product manuals