EasyManua.ls Logo

Böcker BOY - Page 17

Böcker BOY
Print Icon
To Next Page IconTo Next Page
To Next Page IconTo Next Page
To Previous Page IconTo Previous Page
To Previous Page IconTo Previous Page
Loading...
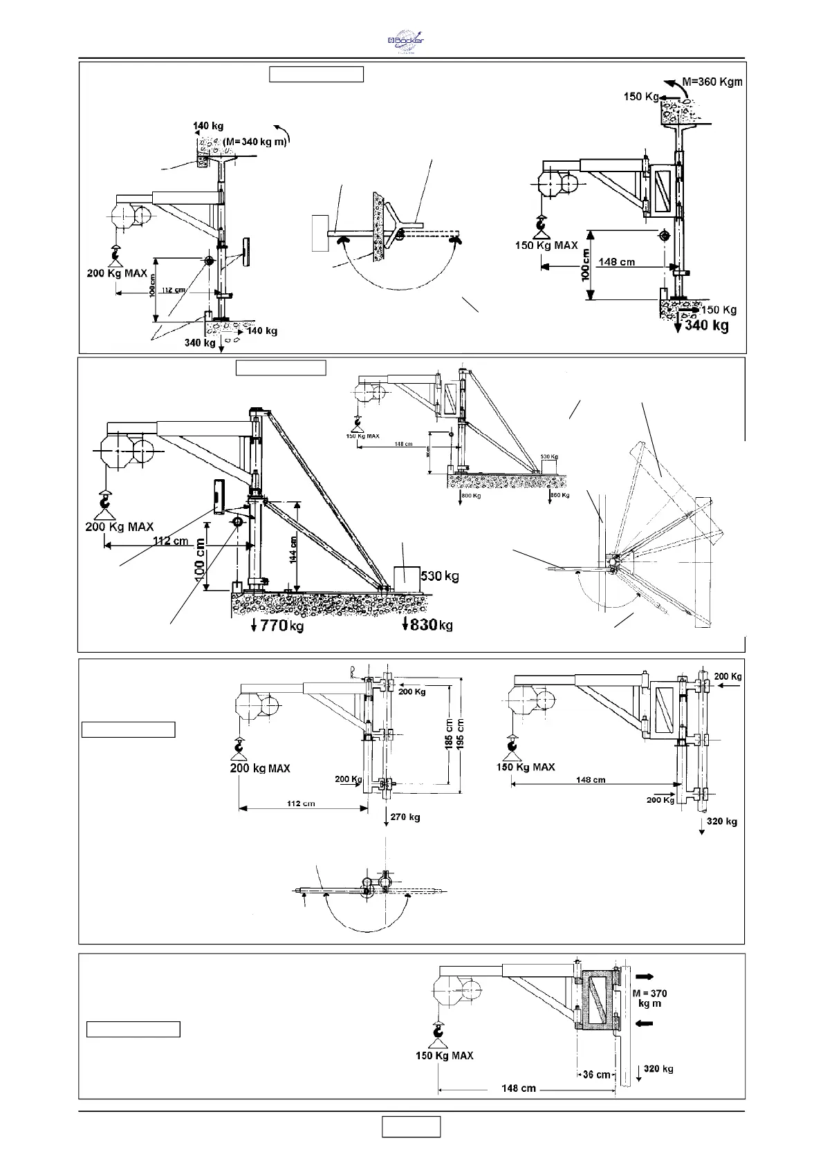
Boy
15
APPAREIL DE LAVAGE
HOI ST
AUFZUG
POUTRE
BEAM
TRÄ GER
POUTRE
BEAM
TRÄ GER
Cod. 1199103
POTEAU POUR INTERIEUR
HOIST FRAME FOR INTERMEDIARY FLOORS
INNENSTÜTZE
PA RA PE T
PA RA PE T
BRÜSTUNG
NIVE AU
SPIRIT LEVEL
W ASSERW AAGE
ZONE DE TRAVAIL OPÉRATEUR
OPERATOR WORK ZONE
ARBEITSBEREICH DES BEDIENERS
POSITION D'APPUI SUPÈRIEURE
POSITIONING TOP FOOTANORDNUNG
DER OBEREN AUFLAGE
Abb. 7 - Fig. 7
APPAREIL DE LAVAGE
HOI ST
AUFZUG
Abb. 8 - Fig. 8
cod. 1199136
KIT POUR POTEAU D' EXTERIEUR
HOIST FRAME FOR ROOFS
BAUSATZ AUßENSTÜTZE
NIVE AU
SPIRIT LEVEL
W ASSERW AAGE
PA RA PE T
PA RA PE T
BRÜSTUNG
CONTENEUR LEST
COUNTER W EIGHT
BA LL A S T
CONTENEUR LEST
COUNTER W EIGHT
BA LL A S T
PA RA PE T
PA RA PE T
BRÜSTUNG
ZONE DE TRAVAIL OPÉRATEUR
OPERATOR WORK ZONE
ARBEITSBEREICH DES BEDIENERS
APPAREIL DE LAVAGE
HOI ST
AUFZUG
Abb. 9 - Fig. 9
FIXATION SUR ECHAFAUDAGE
HOIST FRAME FOR SCAFFOLDING
GERÜSTBEFESTIGUNG
cod. 1199171
POSITION DE TRAVAIL
WORK POSITION
ARBEITSPOSITION
ZONE DE TRAVAIL OPÉRATEUR
OPERATOR WORK ZONE
ARBEITSBEREICH DES BEDIENERS
Abb. 10 - Fig. 10
cod. 1199151
- RALLONGE POUR POTEAU
- JIB EXTENSION FOR INTERMEDIARY FLOOR AND ROOF FRAMES
- SCHWENKARM R-GESCHOßSTÜTZE

Related product manuals