EasyManua.ls Logo

Bosch EV2000 Series - 3 Avant Linstallation; Exigences de Sécurité; Trousse Daccessoires; Outils Conseillés

Bosch EV2000 Series
39 pages
Print Icon
To Next Page IconTo Next Page
To Next Page IconTo Next Page
To Previous Page IconTo Previous Page
To Previous Page IconTo Previous Page
Loading...
579604 | RÉV. C | JUIN 2020
Bosch Automotive Service Solutions Inc.
EV2000 série DC Wallbox Chargeur Manuel d‘installation et d‘utilisation | 3
|
fr
3.0 Avant l’installation
3.1 Exigences de sécurité
` Veillez à prévoir les procédures opératoires normali-
sées (PON) et à vérier les règlements locaux sur la
construction et l’électricité.
` La borne de charge DC Wallbox doit être installée
par un technicien qualié, conformément aux
instructions du manuel et en respectant les
règlements de sécurité locaux.
` Utilisez les protections appropriées lors de la
connexion au câble principal d’alimentation.
` Un sectionneur pour chaque conducteur non relié à
la terre sera fourni par des tiers conformément au
code national électrique, ANSI/NFPA 70.
ATTENTION POUR RÉDUIRE LES
RISQUES D’INCENDIE, POUR UNE
ENTRÉE MONOPHASÉE 200 VCA-
277 VCA, CONFORMÉMENT AU CODE
ÉLECTRIQUE NATIONAL ANSI / NFPA 70.
UN DISJONCTEUR DOIT ÊTRE INSTALLÉ EN
AMONT AVEC UN COURANT NOMINAL DE
175 AMPÈRES.
ATTENTION POUR RÉDUIRE LES
RISQUES D’INCENDIE, POUR UNE ENTRÉE
TRIPHASÉE 480 VCA, CONFORMÉMENT
AU CODE ÉLECTRIQUE NATIONAL ANSI /
NFPA 70, UN DISJONCTEUR DOIT ÊTRE
INSTALLÉ EN AMONT AVEC UN COURANT
NOMINAL DE 40 AMPÈRES.
ATTENTION POUR RÉDUIRE LES
RISQUES D’INCENDIE, POUR UNE ENTRÉE
TRIPHASÉE DE 208 VCA, CONFORMÉMENT
AU CODE NATIONAL DE L’ÉLECTRICITÉ,
ANSI /NFPA 70, UN DISJONCTEUR DOIT
ÊTRE INSTALLÉ EN AMONT AVEC UN
COURANT NOMINAL DE 100 AMPÈRES.
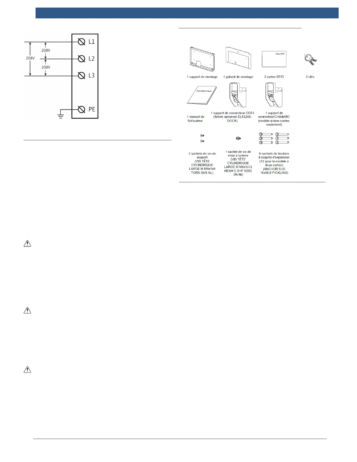
3.2 Trousse d’accessoires
3.3 Outils conseillés
Les outils suivants sont conseillés pour l’installation de
la borne de charge DC Wallbox:
` 1 voltmètre ou un multimètre numérique
` 1 niveau à bulle
` 1 marteau
` 1 perceuse pour béton
` 1 pince à couper et dénuder les ls électriques
tournevis T15 et 1 tournevis T25 Torx® inviolable
` 1 tournevis plat No 8 et une clé à douille
` 1 tournevis plat No 6
` 1 tournevis cruciforme No 2
` 1 entrée de conduit et 1 conduit M50, et une clé
pour les conducteurs de l’alimentation principale
` 1 entrée de conduit et 1 conduit M25, et une clé
pour Ethernet
` 2 cosses à anneau RNB70-10 pour ls L et N (l de
cuivre No 2/0 AWG à 90 °C) pour les modèles à
entrée monophasée de 240 ou 277 V
` 3 cosses à anneau RNB38-6 pour ls L1, L2 et L3
(l de cuivre No. 2 AWG à 90 °C copper wire) pour
les modèles à entrée triphasée de 208 V
` 4 cosses à anneau RNB14-6 pour ls L1, L2, L3 et N
(l de cuivre No. 6 AWG à 90 °C) pour les modèles
à entrée triphasée de 480 V
` 1 cosses à anneau RNB14-6 pour ls de mise à la
terre (PE) (l de cuivre No. 6 AWG à 90 °C)

Related product manuals