EasyManua.ls Logo

Bosch Greensource TW061 - Page 38

Bosch Greensource TW061
48 pages
Print Icon
To Next Page IconTo Next Page
To Next Page IconTo Next Page
To Previous Page IconTo Previous Page
To Previous Page IconTo Previous Page
Loading...
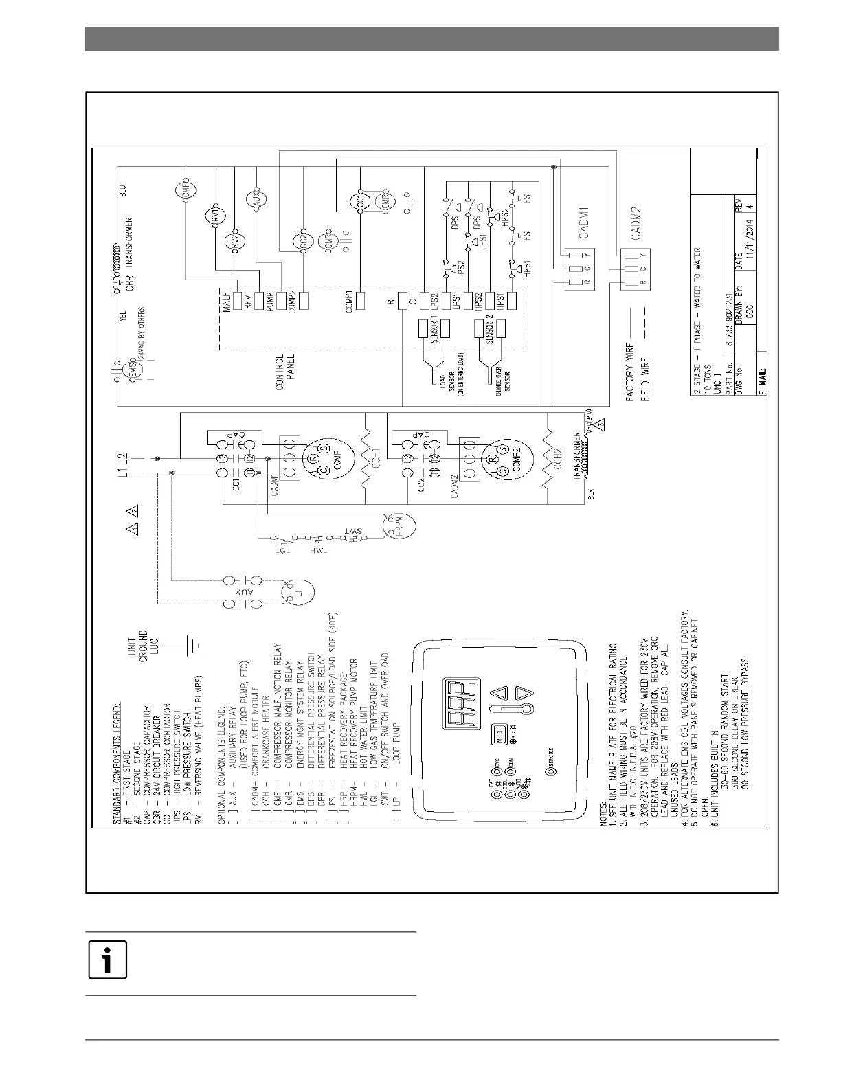
Wiring Diagrams | 38Greensource CDi Series TW Model
8733954853 (2020/04)Greensource CDi Series TW Model
Subject to change without prior notice
Fig. 24
FOR REFERENCE ONLY Actual unit wiring
may vary from this example. Always refer to
the wiring diagram attached to the unit.

Related product manuals