EasyManua.ls Logo

Bosch Rexroth IndraDrive - China RoHS 2 Compliance Information

Bosch Rexroth IndraDrive
26 pages
Print Icon
To Next Page IconTo Next Page
To Next Page IconTo Next Page
To Previous Page IconTo Previous Page
To Previous Page IconTo Previous Page
Loading...
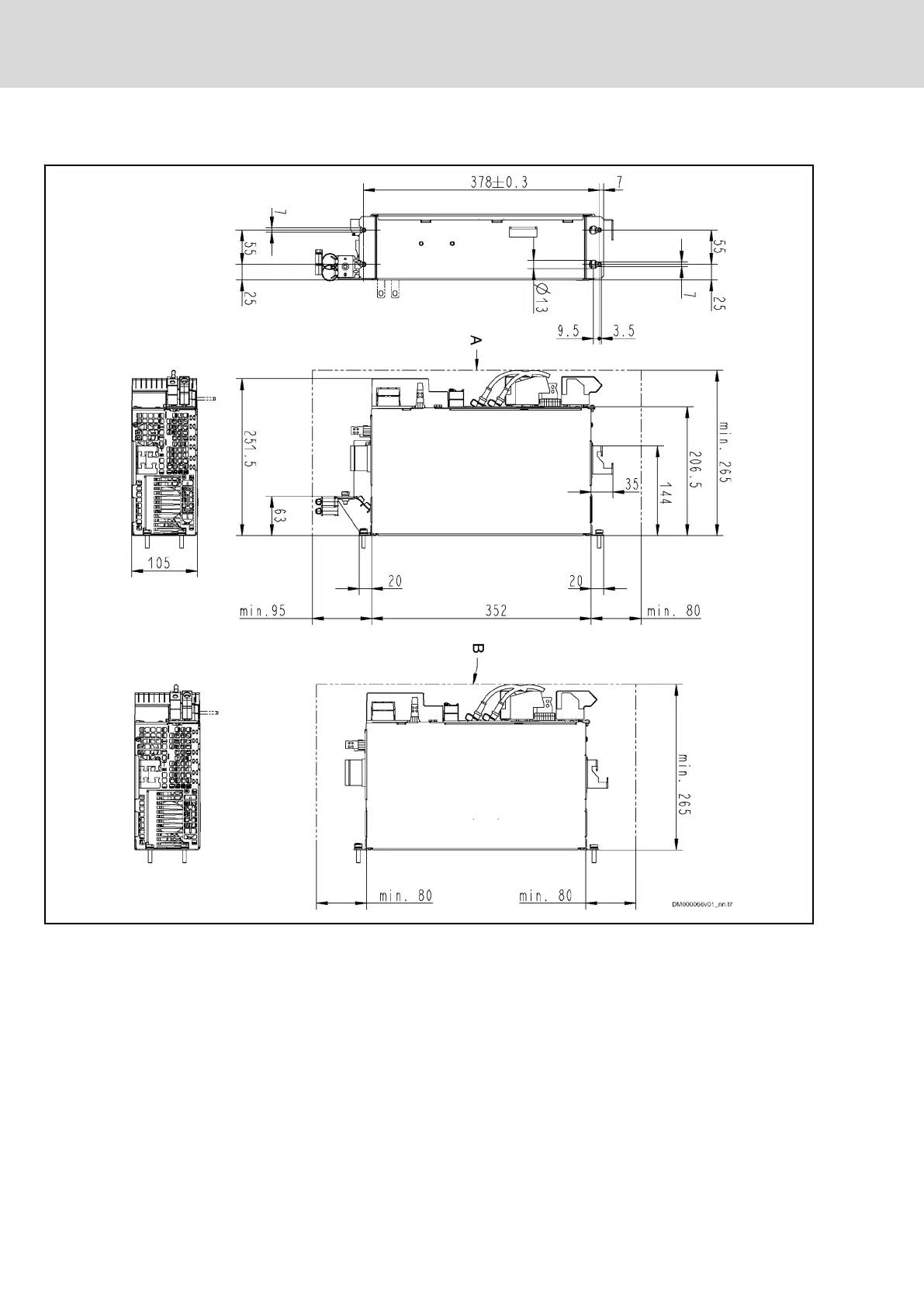
Dimensional drawing HCS02.1E-W0054/70
A Minimum mounting clearance (when using accessory
HAS02.1); plus additional space for cable
B Minimum mounting clearance; plus additional space for cable
Fig. 2-4: Dimensional drawing HCS02.1E-W0054 and HCS02.1E-W0070
2.2 China RoHS 2
www.boschrexroth.com.cn/zh/cn/home_2/china_rohs2
10/21
Ratings and dimensions
IndraDrive Drive Controllers Power Sections HCS02
Bosch Rexroth AG R911319657_Edition 09

Other manuals for Bosch Rexroth IndraDrive

Related product manuals