EasyManua.ls Logo

Branson 3515h - Electric Wiring Diagram

Branson 3515h
454 pages
Print Icon
To Next Page IconTo Next Page
To Next Page IconTo Next Page
To Previous Page IconTo Previous Page
To Previous Page IconTo Previous Page
Loading...
7
-
7
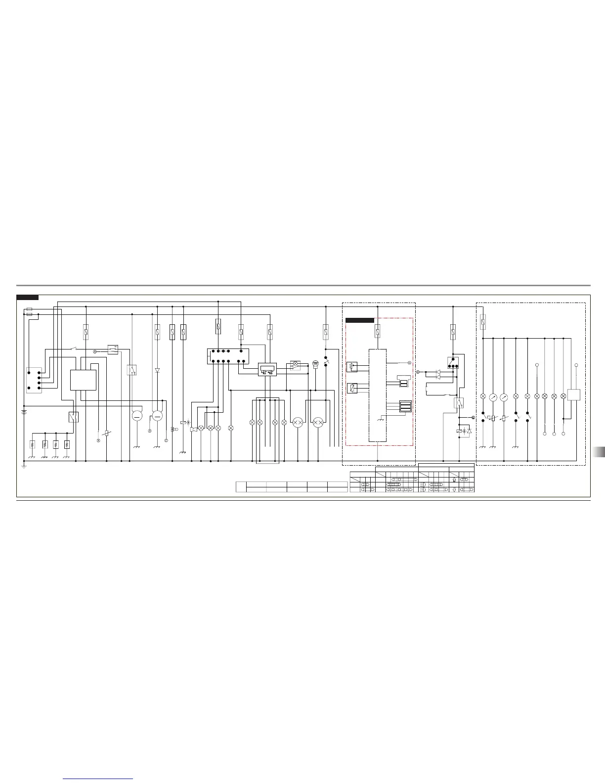
CHAPTER 7 ELECTRIC SYSTEM
42hW-201601
7
3015R(h)/3515R(h)/4015R(h)/F36R(h)/F42R(h) TRACTOR
3. ELECTRIC WIRING DIAGRAM
$
)5:
7:5
*/:
&2/25
*/2:5(/$<
%$77(5<
*/2:3/8*
%:5
*/2:3/8*
*/2:3/8*
*/2:3/8*
%
%:
&
%5
%5
(
&
%
)86(%/,1.32:(5
)86(%/,1.*/2:
%<
%/
%/
%%:
%:5
%<
%:%
%/
*/%
)5%
*/:
*/2:&21752//(5
*<
**<
%
)86(
$
$
*/%
%OXH
5HG
%ODFN
<HOORZ
%
<
7
*UHHQ
:KLWH
*
:
/
5
67$57(5
0
3
2U
/J
%U
*U
%URZQ
*UD\
*(1(5$725
*
/LJKW*UHHQ
2UDQJH
3
6$)(7<67$57(5
5(/$<3
**<
67$575(/$<
6%5
)%
6
%:
% %
5(/$<3
6%5
%:
%:
%:5
%:%
&$%/(%
*:5
/,*
)5/
)(('3803 ) 5*
)86(
(0(5*(1&<
2))
12
6:,7&+
21
%
1&
+($'/$035
+($'/$03/
0(7(53$1(/
7$,//$03
+,*+%($0/$03
%:5
%:%
%:
)5*
7*/
&20%,1$7,216:,7&+
7*%
%
7
$
)86(
5
%
/
)86(
',5(&7,216,*1$//$03575$,/(5
',5(&7,216,*1$//$03/75$,/(5
&20%,6:,7&+
',5(&7,216,*1$//$03/
&
.(<6:,7&+
2))
21
67$57
%
%5
%5
',5(&7,216,*1$//$035
5($5&20%,1$7,21/$035
0(7(53$1(/
& (
5($5&20%,1$7,21/$035
0(7(53$1(/
%
/,*+7
2))
7
5($5&20%,1$7,21/$03
5
%
7851
2))
5
/
/
5($5&20%,1$7,21/$03
6723/$0375$,/(5
7$,//$0375$,/(5
)86(
)/$6+81,7
7*<
7:/
7*%
7:*
8%
6+85,5(*
5(/$<
6+85,5(*
%$7
%$7
5(/$<
)5*
7*
7*<
$
+$=$5'/$036:
6723/$036:
/%U/
3
7
%:5
(1*,1(672362/
)5<
.(<6:,7&+
*(1(5$725',2'(
%5
%:
&/87&+ 6$)(7<6:
6%<
)86(
$
3/<
)5*
)5%
3729$/9(
3725(/$<
3</
&%
%%
3<*
372&+$1*(6:,7&+
3/5
*%
3<%
6$)(7<6:,7&+
,167580(173$1(/'3)
0(7(53$1(/
+$=$5'
/$03
)86(
$
$
)86(
$
)86(
%:5
&$%/(%
,*175$,/(5
+,*+
/2:
5[77/
7[77/
86%9
&$1
6&$11(5
',))6(1625
7(036(1625
$
)86(
+251
+251
%
7*:
+
'3)/2**(5
372
(1*$*(0(17
6:
3015R/3515R/4015R
3
)8(/6(1625
%
7
)5<
)86(
$
3</
0<*
0<5
&22/$177(03
2,/35(6685(
0<%
0<:
3$5.,1*%5$.(
372/$03
:$7(57(03*$8*(
2,/:$51,1*/$03
)8(/*$8*(
3$5.,1*/$03
0*/
21(6,'(%5$.(6:
21(6,'(%5$.(6:
%
&
<
*/2:/$03
0</
*<
/:%
&+$5*(/$03
*<
7$&$20(7(5
+2850(7(5
'
(
*
/:%
'3)/$03
'*:
'%
'5%
'%
'<
&:
&%:
'/%
'5/
'/5
'%
/:%
)5/
%
*/2:5(/$<
*/2:5(/$<
67$57(55(/$<
)8(/3803
%
)8(/&870$*1(79$/9(
:$7(57(03(5$785(6(1625
7*<
F42W702A
MEC. MODEL

Table of Contents