EasyManua.ls Logo

Breckwell BIG E - Page 16

Breckwell BIG E
56 pages
Print Icon
To Next Page IconTo Next Page
To Next Page IconTo Next Page
To Previous Page IconTo Previous Page
To Previous Page IconTo Previous Page
Loading...
16
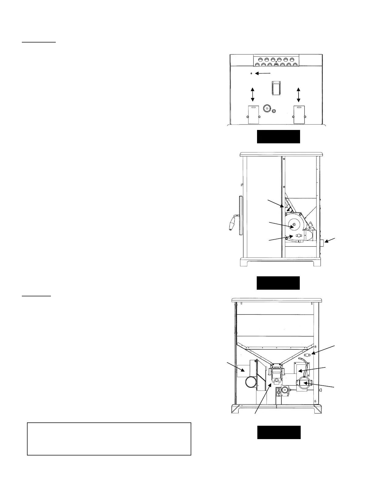
FIGURE 18
FIGURE 19
FIGURE 20
Air Switch Tube
Pellet
Hopper
Auger
Shaft
(A-AUG-22)
Combustion
Blower
(A-E-027)
POF
Thermodisk
(C-E-090-22C)
Air Inlet
Tube
Air Switch
(
C-E-200
)
High Temp
Thermodisk
(
C-E-090-21
)
Convection
Blower
(
A-E-033
Combustion
Blower
(
A-E-027
)
Auger Motor
(
C-E-017
)
CLEANING
a. Heat Exchange Tubes - Your stove is designed with a
built-in heat exchange tube cleaner. This should be
used every two or three days to remove accumulated
ash on the tubes, which reduces the efciency of your
unit. Insert the handle end (with hole) of the cleaning
tool onto the cleaning rod (refer to Figure 15). The
cleaner rod is located in the grill above the stove door.
Move the cleaner rod back and forth several times to
clean the heat exchanger tubes. When nished, be
sure to leave tube cleaner at the rear of the stove.
b. Interior Chambers - The two ash doors in the rebox
in the Breckwell Big E can be removed for periodic
cleaning (refer to Figure 18). These doors allow access
to the chamber behind the rebox.
Periodically, you must vacuum ashes from this chamber.
In some cases, you will need to remove creosote, which
can accumulate rapidly under certain conditions. A small
wire brush can be used. It is important to remove creosote
because it is highly combustible. INSPECT BEHIND THESE
CLEANING PLATES AT LEAST ONCE PER TON OF PELLETS BURNED
UNTIL YOU ARE FAMILIAR WITH HOW ASHES AND CREOSOTE
ACCUMULATE WITH YOUR OPERATING PRACTICES. Use the
small wire brush to also clean the inside of the chamber
walls, above the access doors.
Establish a routine for the fuel, wood burner and ring
technique. Check daily for creosote build-up until experience
shows how often you need to clean to be safe. Be aware
that the hotter the re the less creosote is deposited, and
weekly cleaning may be necessary in mild weather even
though monthly cleaning may be enough in the coldest
months. Contact your local municipal or provincial re
authority for information on how to handle a chimney re.
Have a clearly understood plan to handle a chimney re.
BLOWERS
DANGER: RISK OF ELECTRIC SHOCK. DISCONNECT POWER
BEFORE SERVICING UNIT.
Cleaning - Over a period of time, ashes or dust may collect
on the blades of both the combustion blower and convection
blower. Periodically, the blowers should be vacuumed
clean, as these ashes can impede performance. Creosote
can also accumulate in the combustion blower. This needs
to be brushed clean. The convection blower is accessed
by removing the stove’s left side panel. The combustion
blower can be accessed by removing the right side panel.
The convection blower is on the left (facing stove), and the
combustion blower is on the right.
NOTE: When cleaning, be careful not to dislodge balancing
clip on convection blower or to bend fan blades. Some
stove owners lightly spray an anti-creosote chemical on the
re to help reduce creosote formation within the stove.
CAUTION: This wood heater needs periodic inspection
and repair for proper operation. It is against federal
regulations to operate this wood heater in a manner
inconsistent with operating instructions in this manual.
Maintenance

Related product manuals