EasyManua.ls Logo

Breckwell BIG E - Smoke Smell or Soot Build-Up; Electrical Diagram

Breckwell BIG E
56 pages
Print Icon
To Next Page IconTo Next Page
To Next Page IconTo Next Page
To Previous Page IconTo Previous Page
To Previous Page IconTo Previous Page
Loading...
22
DIGITAL CIRCUIT BOARD TIMING RATES
Heat Level Setting BIG E
1 & 3 1.4 seconds
1 2 seconds
1 & 4 2.5 seconds
2 4 seconds
3 7 seconds
4 9 seconds
5 12 seconds
Total Cycle Time 14.5 seconds
SMOKE SMELL OR SOOT BUILD-UP
Because it is a wood-burning device, your stove may emit a faint wood-burning odor. If this increases beyond
normal or is you notice an unusual soot buildup on walls or furniture, check your exhaust system carefully for leaks.
All joints should be properly sealed. Also, clean your stove following instructions in “MAINTENANCE.” If problem
persists, contact your dealer.
Troubleshooting Guide
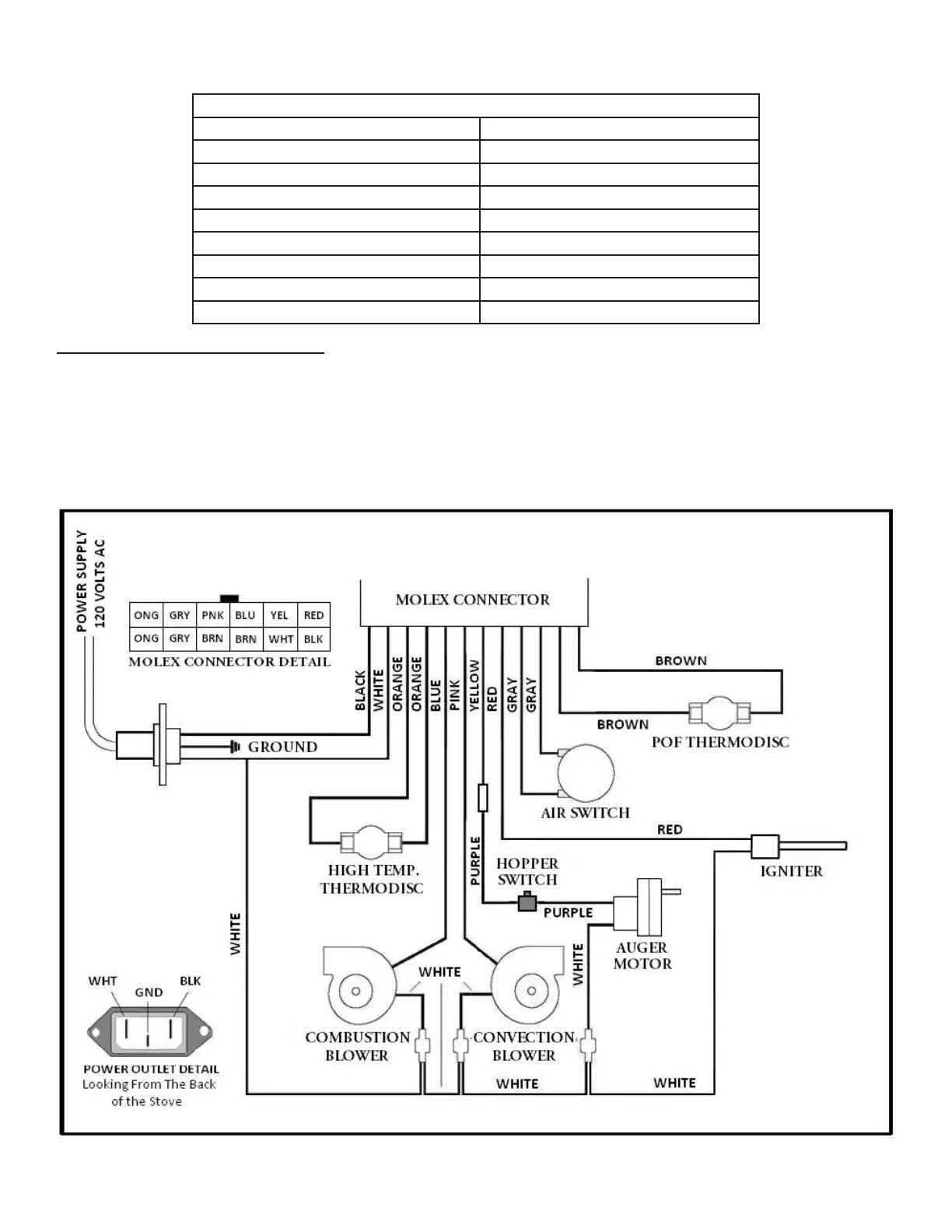
Electrical Diagram

Related product manuals