EasyManua.ls Logo

Brivis ICE DO-SC22Z9 - Wiring Diagrams

Brivis ICE DO-SC22Z9
36 pages
Print Icon
To Next Page IconTo Next Page
To Next Page IconTo Next Page
To Previous Page IconTo Previous Page
To Previous Page IconTo Previous Page
Loading...
Specifications subject to change without notice. © 2013 Brivis Climate Systems Pty Ltd
13
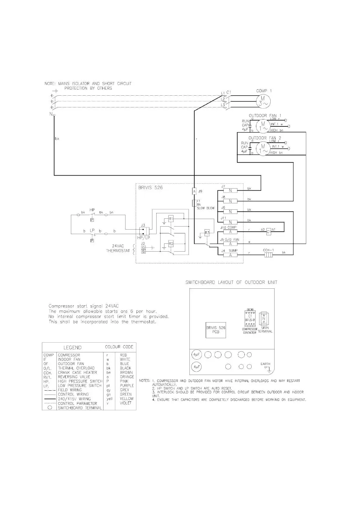
5.4 Wiring Diagrams
Fig. 10 – Typical Outdoor Unit Wiring Diagram (DO-SC22Z9 shown)

Related product manuals