EasyManua.ls Logo

Brivis ICE DO-SC22Z9 - Refrigeration System and Commissioning

Brivis ICE DO-SC22Z9
36 pages
Print Icon
To Next Page IconTo Next Page
To Next Page IconTo Next Page
To Previous Page IconTo Previous Page
To Previous Page IconTo Previous Page
Loading...
Specifications subject to change without notice. © 2013 Brivis Climate Systems Pty Ltd
16
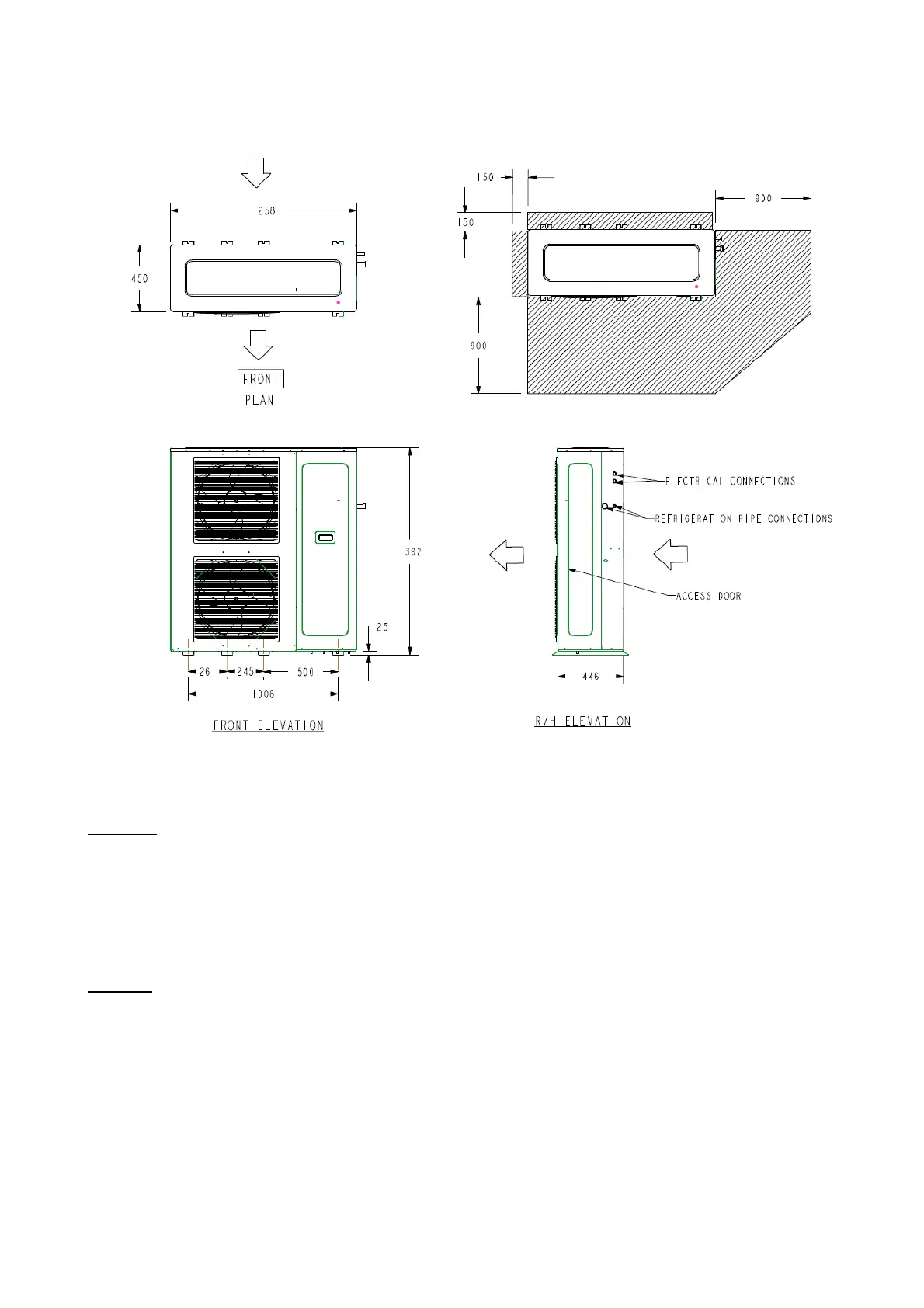
5.5 General Arrangement Drawings & Clearance Requirements
Fig. 13 – Outdoor Unit: DO-SC18Z9 & DO-SC22Z9
6.0 REFRIGERATION CHARGE & PIPE-WORK
WARNING:
Both indoor and outdoor units come delivered under positive pressure
The outdoor unit is charged with sufficient R410a refrigerant for an interconnecting pipe run of 15m actual length
The indoor unit is pressurised with 400kPa to 700kPa dry nitrogen
Pipe end blanking plates must not be removed until the installer is sure the plates are not under positive pressure.
A suction accumulator has been fitted in the outdoor units
Read all instructions and notes below before starting installation
CAUTION:
Use new, clean and sealed refrigeration grade pipe suitable for R410a
Keep pipe ends sealed, both before and during installation, to avoid entry of moisture
Suspend pipes with hangers or straps and seal openings around pipe penetrations with flexible material.
Consider pipe expansion and leave space between pipes and adjacent structures
Use brazing shields where required
When brazing in the vicinity of valves likely to be affected by heat, they shall be lagged with a wet cloth
All brazing operations must be completed with a small steady stream of nitrogen passing through the pipe-work to
limit scale build up and moisture contamination
Never use the unit compressor as a vacuum pump

Related product manuals