EasyManua.ls Logo

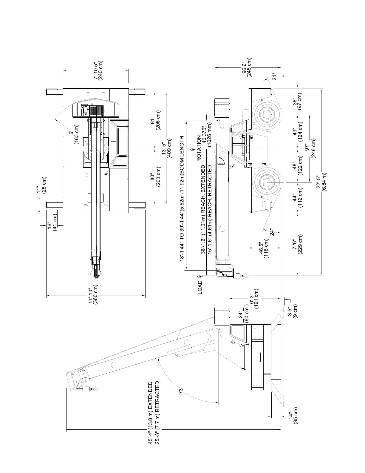
Broderson IC-200-2J - IC-200-2 J Dimensions

Broderson IC-200-2J
79 pages
Print Icon
To Next Page IconTo Next Page
To Next Page IconTo Next Page
To Previous Page IconTo Previous Page
To Previous Page IconTo Previous Page
Loading...
1-2
IC-200-2J DIMENSIONS

Related product manuals