EasyManua.ls Logo

Bryant CHS072 - Page 37

Bryant CHS072
52 pages
Print Icon
To Next Page IconTo Next Page
To Next Page IconTo Next Page
To Previous Page IconTo Previous Page
To Previous Page IconTo Previous Page
Loading...
506 01 2303 01 37
Specifications are subject to change without notice.
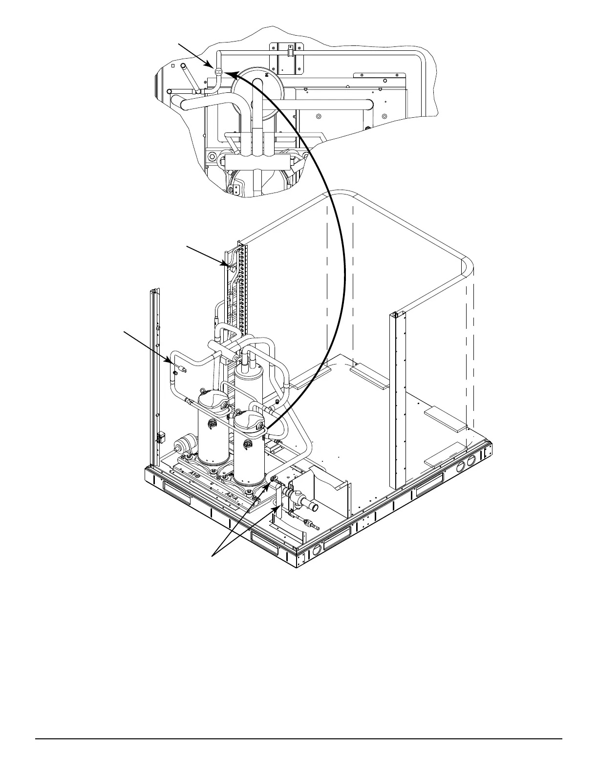
LPS
Defrost
Thermostat
(DFT)
HPS
High Flow
Access Ports
C150424
Fig. 34 -- CHS121*G/H Interior

Related product manuals