EasyManua.ls Logo

Burnham FREEDOM - Page 19

Burnham FREEDOM
88 pages
Print Icon
To Next Page IconTo Next Page
To Next Page IconTo Next Page
To Previous Page IconTo Previous Page
To Previous Page IconTo Previous Page
Loading...
19
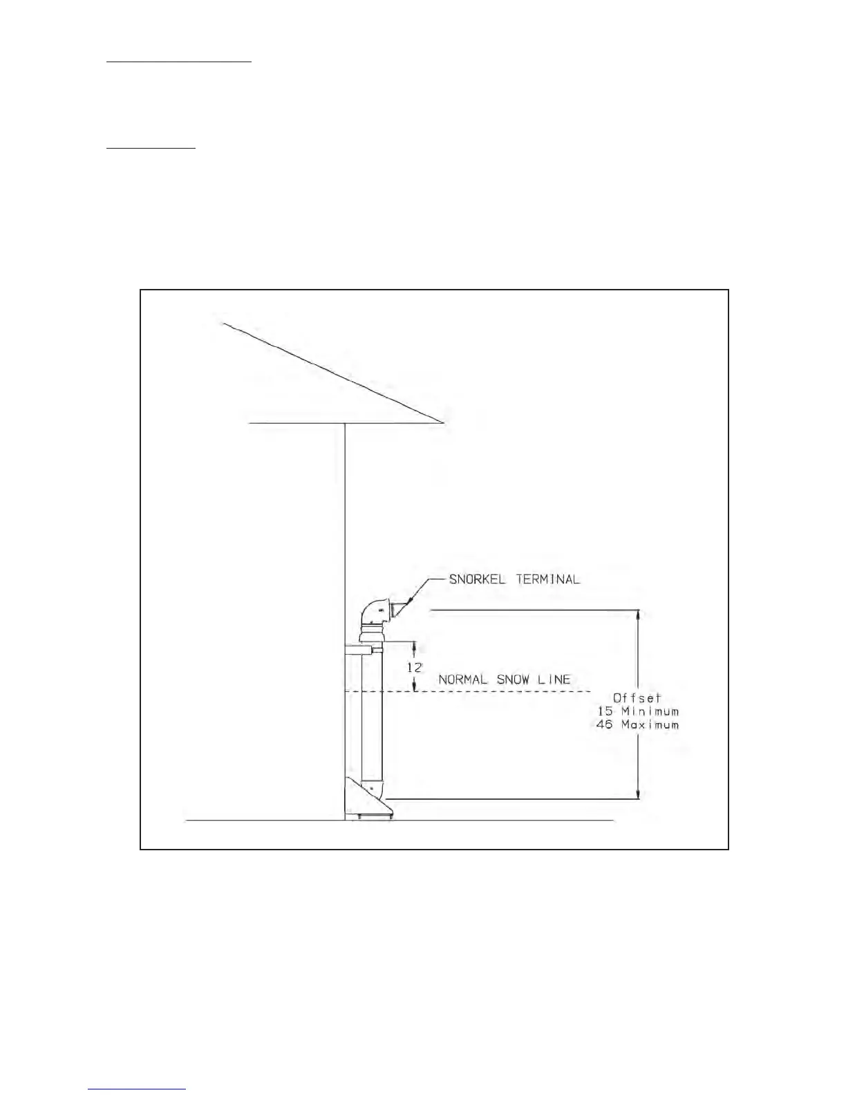
9) PitchofHorizontalPiping-Pitchallhorizontalpipingsothatanycondensatewhichformsinthepipingwillruntowards
theboiler:
• PitchU.S.Boilerhorizontalconcentricventing5/8”perfoot
• PitchStainlesssteelventing1/4”perfoot.
10)SupportingPipe-Verticalandhorizontalsectionsofpipemustbeproperlysupported:
• SupportU.S.Boilerconcentricventingnearthefemaleendofeachstraightsectionofpipe.
Exception:Verticalrunsofconcentricpipeinanunusedchimney(Figure7.36)needonlybesupportedattheterminal
andatthebaseoftherun.
• Supportstainlesssteelventingascalledforbytheventmanufacturersinstructions.
Figure 7.7: Snorkel Terminal Conguration

Other manuals for Burnham FREEDOM

Related product manuals